Skip to content
Perfect Home Plans
home
about
plans
packages
search
contact
Plan: N-52 CASSELBERRY
Plan Details
|
Save Plan
|
Print Plan
|
Modify Plan
|
Reverse Plan
|
Return to Your Search
Details
|
Save
|
See Reverse
|
3D
|
Modify
|
Back to Search
See all 5 photos and rear view
Photographs may reflect modified homes
© copyright by designer
Plan Specification
Total Square Footage:
2,750
Main Level:
2,750
Bedrooms:
3
Baths:
2 Half: 1
Garages:
2
Width/Depth:
69 ft / 66 ft
Foundation:
ICF - Slab (Insul. Conc Forms)
View typical construction drawing >
© copyright by designer
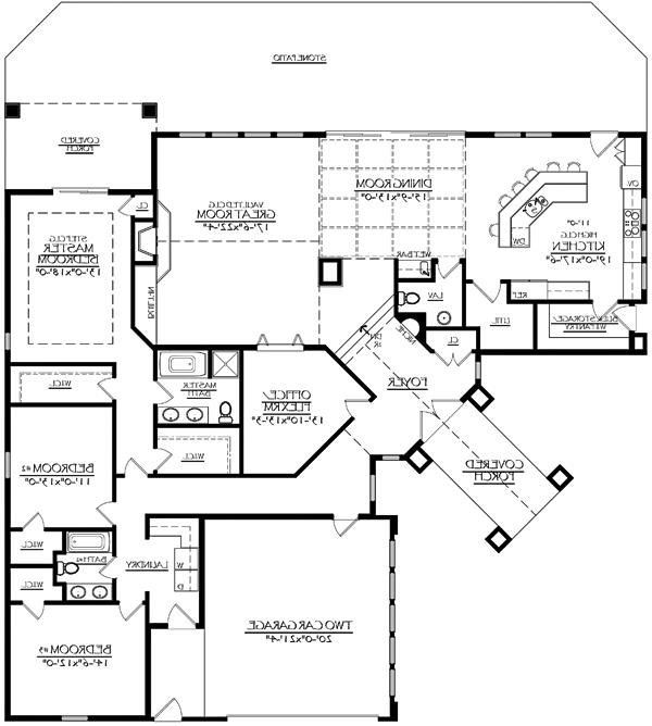
First Floor Plan:
Similar plans:
98363
Add to Favorites
Purchase Plans
House Plan Pricing
PDF BID SET
$925.00
PDF Construction Set - Single Use
$1,170.00
Five Set Package
$1,280.00
Eight Set Package
$1,355.00
CAD FILE - single use
$2,195.00
More details about our plan packages
Foundation Options
ICF - Slab (Insul. Conc Forms)
$100.00
Additional Plan Options
2 x 6 Exterior Wall Option
$150.00
Plan Details
General House Information
1
Number of Stories:
69' 0"
Width:
66' 3"
Depth:
Single
Dwelling Number:
Exterior Style
Contemporary
Craftsman
Number of Rooms
3
Bedrooms:
2
Full Baths:
1
Half Baths:
Finished Square Footage
2,750 Sq. Ft.
Main Level:
2,750 Sq. Ft.
Total:
Unfinished Square Footage
428 Sq. Ft.
Garage:
GARAGE
Front
Garage Location:
2
Garage Size:
Foundation
ICF - Slab (Insul. Conc Forms)
House And Ceiling Heights
9-12
First Floor Ceiling:
19' 8"
Maximum House Height:
Roof Pitch
9/12
Primary:
10/12
Secondary:
Roof Load
30
Live:
Insulation (R)
Per IRC Climate Zones
Number of Rooms
3
Bedrooms:
2
Full Baths:
1
Half Baths:
Key Features
• Attached
• Covered Front Porch
• Covered Rear Porch
• Dining Room
• Double Vanity Sink
• Fireplace
• Foyer
• Front-entry
• Great Room
• Laundry 1st Fl
• Open Floor Plan
• Peninsula / Eating Bar
• Separate Tub and Shower
• Slab
• Storage Space
• Suited for corner lot
• Vaulted Ceilings
• Walk-in Closet
• Walk-in Pantry
Plan: N-52 CASSELBERRY
Close
featured plans
open floor plans
modern floor plans
home addition plans
ranch style plans
single story plans
multi story plans
farmhouse plans
cottage plans
lake house plans
small homes
featured plans
open floor plans
modern floor plans
home addition plans
ranch style plans
single story plans
multi story plans
farmhouse plans
cottage plans
lake house plans
small homes