Skip to content
Perfect Home Plans
home
about
plans
packages
search
contact
Plan: KFBR3 New Family Room & Master Suite (KFBR3)
Plan Details
|
Save Plan
|
Print Plan
|
Modify Plan
|
Reverse Plan
|
Return to Your Search
Details
|
Save
|
See Reverse
|
3D
|
Modify
|
Back to Search
See all 5 photos and rear view
Photographs may reflect modified homes
© copyright by designer
Plan Specification
Total Square Footage:
800
Main Level:
400
Second Level:
400
Bedrooms:
0
Baths:
0 Half: 0
Garages:
0
Width/Depth:
25 ft / 18 ft
View typical construction drawing >
© copyright by designer
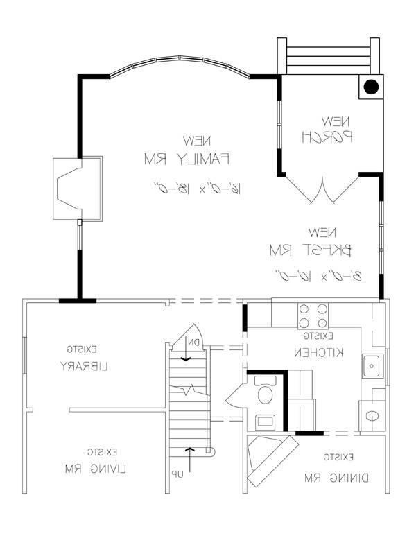
Remodeled First Floor Plan:
© copyright by designer
1st & 2nd Existing Floor Plans:
© copyright by designer
Remodeled Second Floor Plan:
© copyright by designer
Remodeled Rear Rendering:
Similar plans:
CAP04
,
06311
Add to Favorites
Purchase Plans
House Plan Pricing
PDF Construction Set - Single Use
$350.00
More details about our plan packages
Plan Details
General House Information
2
Number of Stories:
25' 0"
Width:
18' 4"
Depth:
Home Addition
Dwelling Number:
Exterior Style
Home Addition
Finished Square Footage
400 Sq. Ft.
Main Level:
400 Sq. Ft.
Upper Level:
800 Sq. Ft.
Total:
GARAGE
0
Garage Size:
Insulation (R)
Per IRC Climate Zones
Key Features
Plan: KFBR3 New Family Room & Master Suite (KFBR3)
Close
featured plans
open floor plans
modern floor plans
home addition plans
ranch style plans
single story plans
multi story plans
farmhouse plans
cottage plans
lake house plans
small homes
featured plans
open floor plans
modern floor plans
home addition plans
ranch style plans
single story plans
multi story plans
farmhouse plans
cottage plans
lake house plans
small homes