Perfect Home Plans

Plan: HFL-1800-MY MAY

Details |  Save | See Reverse | 3D | Modify | Back to Search
Front Rendering Rear Elevation First Floor Plan
See all 3 photos and rear view
Photographs may reflect modified homes
© copyright by designer
Plan Specification
Total Square Footage: 1,506
Main Level: 1,506
Bedrooms: 3
Baths: 2 Half: 0
Garages: 2
Width/Depth: 61 ft / 40 ft
Foundation: Basement, Crawl Space, Slab Foundation
© copyright by designer 
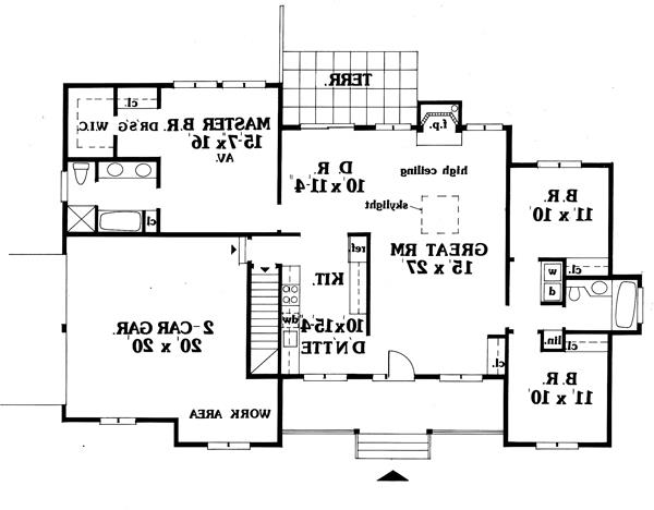
First Floor Plan:
First Floor Plan
Add to Favorites
Purchase Plans
House Plan Pricing
$710.00
$940.00
$1,050.00
$1,125.00
More details about our plan packages
Foundation Options
$0.00
$0.00
$150.00
Additional Plan Options
$50.00
$95.00
$150.00
$250.00
Plan Details
General House Information
1
Number of Stories:
61' 4"
Width:
40' 2"
Depth:
Single
Dwelling Number:
Exterior Style
Cottage
Country
Ranch
Number of Rooms
3
Bedrooms:
2
Full Baths:
Finished Square Footage
1,506 Sq. Ft.
Main Level:
1,506 Sq. Ft.
Total:
Unfinished Square Footage
455 Sq. Ft.
Garage:
148 Sq. Ft.
Porch:
GARAGE
Side
Garage Location:
2
Garage Size:
Foundation
Basement
Crawl Space
Slab Foundation
House And Ceiling Heights
8.1
First Floor Ceiling:
20' 0"
Maximum House Height:
Framing Information
Stick
Roof Framing:
2x6
Exterior Wall Framing:
Roof Pitch
8/12
Primary:
Roof Load
30
Live:
10
Dead:
Insulation (R)
Per IRC Climate Zones
Number of Rooms
3
Bedrooms:
2
Full Baths:
Key Features
• Attached
• Basement
• Covered Front Porch
• Crawlspace
• Dining Room
• Double Vanity Sink
• Fireplace
• Foyer
• Great Room
• His and Hers Master Closets
• Laundry 1st Fl
• Master Bdrm Main Floor
• Mud Room
• Nook / Breakfast Area
• Separate Tub and Shower
• Slab
• Split Bedrooms
• Vaulted Ceilings
• Walk-in Closet
• Workshop