Perfect Home Plans

Plan: HFL-1730-CN CAITLIN

Details |  Save | See Reverse | 3D | Modify | Back to Search
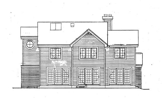
Front Rendering Rear Elevation First Floor Plan Second Floor Plan
See all 4 photos and rear view
Photographs may reflect modified homes
© copyright by designer
Plan Specification
Total Square Footage: 2,504
Main Level: 1,201
Second Level: 1,303
Bedrooms: 4
Baths: 2 Half: 1
Garages: 2
Width/Depth: 50 ft / 42 ft
Foundation: Basement, Crawl Space, Slab Foundation
© copyright by designer 
First Floor Plan:
First Floor Plan
© copyright by designer 
Second Floor Plan:
Second Floor Plan
Add to Favorites
Purchase Plans
House Plan Pricing
$875.00
$1,155.00
$1,265.00
$1,340.00
More details about our plan packages
Foundation Options
$0.00
$0.00
$150.00
Additional Plan Options
$50.00
$95.00
$150.00
$250.00
Plan Details
General House Information
2
Number of Stories:
50' 10"
Width:
42' 3"
Depth:
Single
Dwelling Number:
Exterior Style
Country
Traditional
Number of Rooms
4
Bedrooms:
2
Full Baths:
1
Half Baths:
Finished Square Footage
1,201 Sq. Ft.
Main Level:
1,303 Sq. Ft.
Upper Level:
2,504 Sq. Ft.
Total:
Unfinished Square Footage
488 Sq. Ft.
Garage:
51 Sq. Ft.
Porch:
GARAGE
Front
Garage Location:
2
Garage Size:
Foundation
Basement
Crawl Space
Slab Foundation
House And Ceiling Heights
8.1
First Floor Ceiling:
8.1
Second Floor Ceiling:
28' 6"
Maximum House Height:
Framing Information
Stick
Roof Framing:
2x6
Exterior Wall Framing:
Roof Pitch
10/12
Primary:
4/12
Secondary:
Roof Load
30
Live:
10
Dead:
Insulation (R)
Per IRC Climate Zones
Number of Rooms
4
Bedrooms:
2
Full Baths:
1
Half Baths:
Key Features
• 2 Story Volume
• Attached
• Basement
• Covered Front Porch
• Crawlspace
• Dining Room
• Double Vanity Sink
• Family Room
• Fireplace
• Formal LR
• Foyer
• Front-entry
• His and Hers Master Closets
• Laundry 1st Fl
• Master Bdrm Upstairs
• Mud Room
• Nook / Breakfast Area
• Separate Tub and Shower
• Sitting Area
• Slab
• Suited for narrow lot
• Suited for view lot
• Vaulted Ceilings
• Walk-in Closet