Skip to content
Perfect Home Plans
home
about
plans
packages
search
contact
Plan: HFL-1150-BE BEA
Plan Details
|
Save Plan
|
Print Plan
|
Modify Plan
|
Reverse Plan
|
Return to Your Search
Details
|
Save
|
See Reverse
|
3D
|
Modify
|
Back to Search
See all 5 photos and rear view
Photographs may reflect modified homes
© copyright by designer
Plan Specification
Total Square Footage:
2,001
Main Level:
1,345
Second Level:
656
Bedrooms:
5
Baths:
2 Half: 0
Garages:
2
Width/Depth:
49 ft / 58 ft
Foundation:
Basement, Crawl Space, Slab Foundation
View typical construction drawing >
© copyright by designer
First Floor Plan:
© copyright by designer
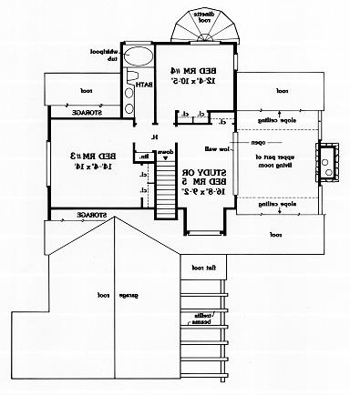
Second Floor Plan:
Similar plans:
HFL-1750-IR
,
HFL-1500-PN
,
98489
Add to Favorites
Purchase Plans
House Plan Pricing
PDF BID SET
$785.00
PDF Construction Set - Single Use
$1,040.00
Five Set Package
$1,150.00
Eight Set Package
$1,225.00
More details about our plan packages
Foundation Options
Crawl Space
$0.00
Slab Foundation
$0.00
Basement
$150.00
Additional Plan Options
Multiple Use License (For more than one home)
$250.00
Additional Set
$50.00
Material List (if available)
$85.00
High Wind Structural Drawings
$150.00
Plan Details
General House Information
1.5
Number of Stories:
49' 0"
Width:
58' 0"
Depth:
Single
Dwelling Number:
None
Bonus Access:
Exterior Style
Vacation
Beach
Contemporary
Modern
Facade
Owner's Choice
OwnersChoice
Number of Rooms
5
Bedrooms:
2
Full Baths:
Finished Square Footage
1,345 Sq. Ft.
Main Level:
656 Sq. Ft.
Upper Level:
2,001 Sq. Ft.
Total:
Unfinished Square Footage
467 Sq. Ft.
Garage:
GARAGE
Front
Garage Location:
2
Garage Size:
Foundation
Basement
Crawl Space
Slab Foundation
House And Ceiling Heights
8'-1"
First Floor Ceiling:
25' 0"
Maximum House Height:
Framing Information
Stick
Roof Framing:
2x6
Exterior Wall Framing:
Roof Pitch
12/12
Primary:
Roof Load
40
Live:
Insulation (R)
19
Exterior Wall:
0
Interior Wall:
38
Ceiling:
19
Floor:
Number of Rooms
5
Bedrooms:
2
Full Baths:
Key Features
• Attached
• Basement
• Crawlspace
• Front Porch
• Front-entry
• Laundry 1st Fl
• Master Bdrm Main Floor
• Mud Room
• Nook / Breakfast Area
• Slab
• Suited for narrow lot
Plan: HFL-1150-BE BEA
Close
featured plans
open floor plans
modern floor plans
home addition plans
ranch style plans
single story plans
multi story plans
farmhouse plans
cottage plans
lake house plans
small homes
featured plans
open floor plans
modern floor plans
home addition plans
ranch style plans
single story plans
multi story plans
farmhouse plans
cottage plans
lake house plans
small homes