Skip to content
Perfect Home Plans
home
about
plans
packages
search
contact
Plan: HFL-1120-CO CORI
Plan Details
|
Save Plan
|
Print Plan
|
Modify Plan
|
Reverse Plan
|
Return to Your Search
Details
|
Save
|
See Reverse
|
3D
|
Modify
|
Back to Search
See all 4 photos and rear view
Photographs may reflect modified homes
© copyright by designer
Plan Specification
Total Square Footage:
2,212
Main Level:
1,192
Second Level:
1,020
Bedrooms:
4
Baths:
2 Half: 1
Garages:
2
Width/Depth:
67 ft / 44 ft
Foundation:
Basement, Crawl Space, Slab Foundation
View typical construction drawing >
© copyright by designer
First Floor Plan:
© copyright by designer
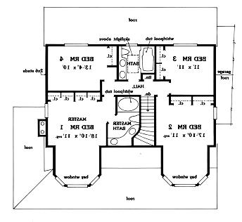
Second Floor Plan:
Similar plans:
90309
,
93309
,
HFL-1570-SA
,
1224
Add to Favorites
Purchase Plans
House Plan Pricing
PDF BID SET
$805.00
PDF Construction Set - Single Use
$1,040.00
Five Set Package
$1,150.00
Eight Set Package
$1,225.00
More details about our plan packages
Foundation Options
Crawl Space
$0.00
Slab Foundation
$0.00
Basement
$150.00
Additional Plan Options
Additional Set
$50.00
Material List (if available)
$95.00
Multiple Use License (For more than one home)
$250.00
High Wind Structural Drawings
$150.00
Plan Details
General House Information
2
Number of Stories:
67' 4"
Width:
44' 8"
Depth:
Single
Dwelling Number:
Exterior Style
Old House Classics
Cottage
Country
Farmhouse
Facade
Owner's Choice
OwnersChoice
Number of Rooms
4
Bedrooms:
2
Full Baths:
1
Half Baths:
Finished Square Footage
1,192 Sq. Ft.
Main Level:
1,020 Sq. Ft.
Upper Level:
2,212 Sq. Ft.
Total:
Unfinished Square Footage
469 Sq. Ft.
Garage:
GARAGE
Side
Garage Location:
2
Garage Size:
Foundation
Basement
Crawl Space
Slab Foundation
House And Ceiling Heights
8'-1"
First Floor Ceiling:
8'-1"
Second Floor Ceiling:
27' 8"
Maximum House Height:
Framing Information
Stick
Roof Framing:
2x6
Exterior Wall Framing:
Roof Pitch
12/12
Primary:
4/ 12
Secondary:
Roof Load
30
Live:
7
Dead:
Insulation (R)
19
Exterior Wall:
0
Interior Wall:
30
Ceiling:
19
Floor:
Number of Rooms
4
Bedrooms:
2
Full Baths:
1
Half Baths:
Key Features
• 2 Master Suites
• Attached
• Basement
• Covered Front Porch
• Covered Rear Porch
• Crawlspace
• Double Vanity Sink
• Family Room
• Fireplace
• Formal LR
• Foyer
• Front-entry
• Kitchen Island
• Laundry 1st Fl
• Master Bdrm Upstairs
• Mud Room
• Nook / Breakfast Area
• Sitting Area
• Slab
• Vaulted Ceilings
• Wraparound Porch
Plan: HFL-1120-CO CORI
Close
featured plans
open floor plans
modern floor plans
home addition plans
ranch style plans
single story plans
multi story plans
farmhouse plans
cottage plans
lake house plans
small homes
featured plans
open floor plans
modern floor plans
home addition plans
ranch style plans
single story plans
multi story plans
farmhouse plans
cottage plans
lake house plans
small homes