Skip to content
Perfect Home Plans
home
about
plans
packages
search
contact
Plan: CAP04 Add a Second Floor (CAP04)
Plan Details
|
Save Plan
|
Print Plan
|
Modify Plan
|
Reverse Plan
|
Return to Your Search
Details
|
Save
|
See Reverse
|
3D
|
Modify
|
Back to Search
See all 6 photos and rear view
Photographs may reflect modified homes
© copyright by designer
Plan Specification
Total Square Footage:
794
Bedrooms:
0
Baths:
0 Half: 0
Garages:
0
Width/Depth:
34 ft / 26 ft
View typical construction drawing >
© copyright by designer
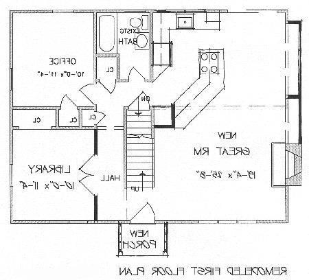
Remodeled First Floor Plan:
© copyright by designer
Remodeled Second Floor Plan:
© copyright by designer
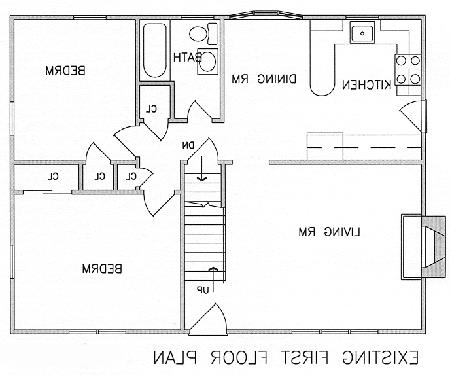
First Floor Plan:
© copyright by designer
Second Floor Plan:
Similar plans:
06309
,
KFBR3
Add to Favorites
Purchase Plans
House Plan Pricing
PDF Construction Set - Single Use
$350.00
More details about our plan packages
Plan Details
General House Information
2
Number of Stories:
34' 0"
Width:
26' 0"
Depth:
Home Addition
Dwelling Number:
Exterior Style
Home Addition
Finished Square Footage
794 Sq. Ft.
Total:
GARAGE
0
Garage Size:
Insulation (R)
Per IRC Climate Zones
Key Features
Plan: CAP04 Add a Second Floor (CAP04)
Close
featured plans
open floor plans
modern floor plans
home addition plans
ranch style plans
single story plans
multi story plans
farmhouse plans
cottage plans
lake house plans
small homes
featured plans
open floor plans
modern floor plans
home addition plans
ranch style plans
single story plans
multi story plans
farmhouse plans
cottage plans
lake house plans
small homes