Skip to content
Perfect Home Plans
home
about
plans
packages
search
contact
Plan: 98606 WOODBURY
Plan Details
|
Save Plan
|
Print Plan
|
Modify Plan
|
Reverse Plan
|
Return to Your Search
Details
|
Save
|
See Reverse
|
3D
|
Modify
|
Back to Search
See all 5 photos and rear view
Photographs may reflect modified homes
© copyright by designer
Plan Specification
Total Square Footage:
2,685
Main Level:
1,390
Lower Level:
1,295
Bonus:
314
Bedrooms:
4
Baths:
2 Half: 1
Garages:
2
Width/Depth:
81 ft / 36 ft
Foundation:
Walk-out basement
View typical construction drawing >
© copyright by designer
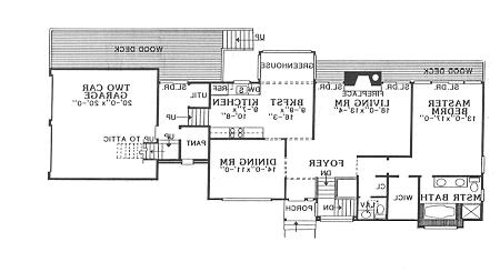
First Floor Plan:
© copyright by designer
Loft:
© copyright by designer
Lower Level:
Similar plans:
98624
,
98266
Add to Favorites
Purchase Plans
House Plan Pricing
PDF BID SET
$825.00
PDF Construction Set - Single Use
$1,125.00
Five Set Package
$1,236.00
Eight Set Package
$1,310.00
More details about our plan packages
Foundation Options
Walk-out basement
$0.00
Additional Plan Options
Multiple Use License (For more than one home)
$250.00
Additional Set
$50.00
Material List (if available)
$95.00
High Wind Structural Drawings
$150.00
Plan Details
General House Information
2
Number of Stories:
81' 8"
Width:
36' 0"
Depth:
Single
Dwelling Number:
Exterior Style
Contemporary
Modern
Ranch
Facade
Owner's Choice
OwnersChoice
Number of Rooms
4
Bedrooms:
2
Full Baths:
1
Half Baths:
Finished Square Footage
1,390 Sq. Ft.
Main Level:
1,295 Sq. Ft.
Lower Level:
2,685 Sq. Ft.
Total:
Unfinished Square Footage
427 Sq. Ft.
Garage:
314 Sq. Ft.
Bonus Room:
GARAGE
Under
Garage Location:
2
Garage Size:
Foundation
Walk-out basement
House And Ceiling Heights
8'-1"
First Floor Ceiling:
8'-1"
Second Floor Ceiling:
22' 10"
Maximum House Height:
Framing Information
Stick
Roof Framing:
2x4
Exterior Wall Framing:
Roof Pitch
12/12
Primary:
8-1/2: 12
Secondary:
Roof Load
30
Live:
10
Dead:
Insulation (R)
13
Exterior Wall:
0
Interior Wall:
30
Ceiling:
19
Floor:
Number of Rooms
4
Bedrooms:
2
Full Baths:
1
Half Baths:
Key Features
• 4 Bedrooms
• Attached
• Bonus Room
• Children's Retreat
• Daylight Basement
• Deck
• Dining Room
• Drive-under
• Formal Dining Room
• Foyer
• Master Suite
• Suited for sloping lot
• Vaulted Ceilings
• Vaulted Living Room
• Walkout / Finished Basement
• Walkout Basement
Plan: 98606 WOODBURY
Close
featured plans
open floor plans
modern floor plans
home addition plans
ranch style plans
single story plans
multi story plans
farmhouse plans
cottage plans
lake house plans
small homes
featured plans
open floor plans
modern floor plans
home addition plans
ranch style plans
single story plans
multi story plans
farmhouse plans
cottage plans
lake house plans
small homes