Skip to content
Perfect Home Plans
home
about
plans
packages
search
contact
Plan: 98468 DOVER
Plan Details
|
Save Plan
|
Print Plan
|
Modify Plan
|
Reverse Plan
|
Return to Your Search
Details
|
Save
|
See Reverse
|
3D
|
Modify
|
Back to Search
See all 7 photos and rear view
Photographs may reflect modified homes
© copyright by designer
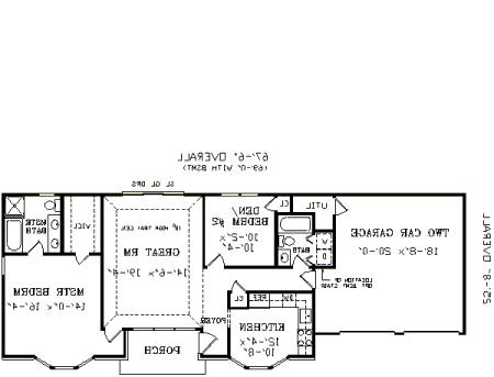
Plan Specification
Total Square Footage:
1,139
Main Level:
1,139
Bedrooms:
2
Baths:
2 Half: 0
Garages:
2
Width/Depth:
67 ft / 25 ft
Foundation:
Basement, Crawl Space, Slab Foundation
View typical construction drawing >
© copyright by designer
Front Rendering:
© copyright by designer
First Floor Plan:
© copyright by designer
Optional Floor Plan:
Similar plans:
98048
,
97359
,
HFL-1680-FL
,
HFL-3035-JL
Add to Favorites
Purchase Plans
House Plan Pricing
PDF BID SET
$640.00
PDF Construction Set - Single Use
$870.00
Five Set Package
$980.00
Eight Set Package
$1,055.00
More details about our plan packages
Foundation Options
Crawl Space
$0.00
Slab Foundation
$0.00
Basement
$150.00
Additional Plan Options
Additional Set
$50.00
Material List (if available)
$95.00
Multiple Use License (For more than one home)
$250.00
High Wind Structural Drawings
$150.00
Plan Details
General House Information
1
Number of Stories:
67' 6"
Width:
25' 8"
Depth:
Single
Dwelling Number:
Exterior Style
Florida
Old House Classics
Vacation
Bungalow
Ranch
Traditional
Facade
Owner's Choice
OwnersChoice
Number of Rooms
2
Bedrooms:
2
Full Baths:
Finished Square Footage
1,139 Sq. Ft.
Main Level:
1,139 Sq. Ft.
Total:
Unfinished Square Footage
412 Sq. Ft.
Garage:
GARAGE
Side
Garage Location:
2
Garage Size:
Foundation
Basement
Crawl Space
Slab Foundation
House And Ceiling Heights
8'-1"
First Floor Ceiling:
15' 0"
Maximum House Height:
Framing Information
Stick
Roof Framing:
2x4
Exterior Wall Framing:
Roof Pitch
6/12
Primary:
Roof Load
30
Live:
10
Dead:
Insulation (R)
13
Exterior Wall:
0
Interior Wall:
30
Ceiling:
19
Floor:
Number of Rooms
2
Bedrooms:
2
Full Baths:
Key Features
• Attached
• Basement
• Country Kitchen
• Covered Front Porch
• Crawlspace
• Den / Library
• Double Vanity Sink
• Foyer
• Front-entry
• Great Room
• Laundry 1st Fl
• Master Bdrm Main Floor
• Nook / Breakfast Area
• Separate Tub and Shower
• Slab
• Split Bedrooms
• Storage Space
• Walk-in Closet
Plan: 98468 DOVER
Close
featured plans
open floor plans
modern floor plans
home addition plans
ranch style plans
single story plans
multi story plans
farmhouse plans
cottage plans
lake house plans
small homes
featured plans
open floor plans
modern floor plans
home addition plans
ranch style plans
single story plans
multi story plans
farmhouse plans
cottage plans
lake house plans
small homes