Perfect Home Plans

Plan: 98352 BALSAM

Details |  Save | See Reverse | 3D | Modify | Back to Search
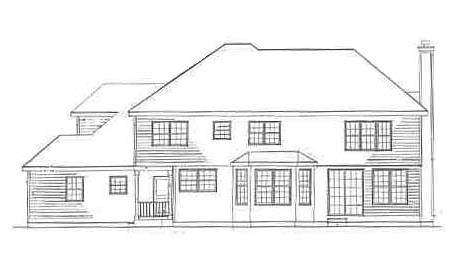
Front Photo #1 Front Rendering Front Photo #2 Rear Rendering First Floor Plan Second Floor Plan
See all 6 photos and rear view
Photographs may reflect modified homes
© copyright by designer
Plan Specification
Total Square Footage: 3,349
Main Level: 1,894
Second Level: 1,455
Bedrooms: 5
Baths: 3 Half: 1
Garages: 2
Width/Depth: 66 ft / 46 ft
Foundation: Basement, Crawl Space
© copyright by designer 
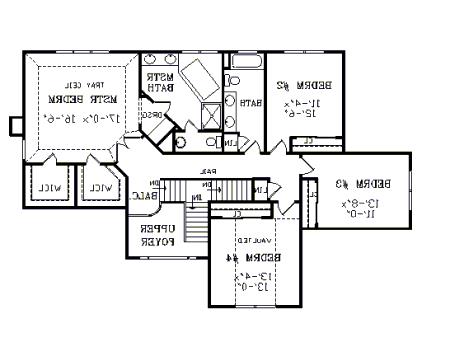
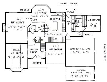
First Floor Plan:
First Floor Plan
© copyright by designer 
Second Floor Plan:
Second Floor Plan
Similar plans: 2334, 990302
Add to Favorites
Purchase Plans
House Plan Pricing
$1,025.00
$1,280.00
$1,390.00
$1,470.00
More details about our plan packages
Foundation Options
$0.00
$150.00
Additional Plan Options
$250.00
$50.00
$100.00
$150.00
Plan Details
General House Information
2
Number of Stories:
66' 0"
Width:
46' 0"
Depth:
Single
Dwelling Number:
Exterior Style
Luxury
European
French Country
Southern
Facade
Owner's Choice
OwnersChoice
Number of Rooms
5
Bedrooms:
3
Full Baths:
1
Half Baths:
Finished Square Footage
1,894 Sq. Ft.
Main Level:
1,455 Sq. Ft.
Upper Level:
3,349 Sq. Ft.
Total:
Unfinished Square Footage
493 Sq. Ft.
Garage:
GARAGE
Side
Garage Location:
2
Garage Size:
Foundation
Basement
Crawl Space
House And Ceiling Heights
9'-1"
First Floor Ceiling:
8'-1"
Second Floor Ceiling:
29' 4"
Maximum House Height:
Framing Information
Stick
Roof Framing:
2x4
Exterior Wall Framing:
Roof Pitch
10/12
Primary:
Roof Load
30
Live:
10
Dead:
Insulation (R)
13
Exterior Wall:
0
Interior Wall:
30
Ceiling:
19
Floor:
Number of Rooms
5
Bedrooms:
3
Full Baths:
1
Half Baths:
Key Features
• 2 Story Volume
• Attached
• Basement
• Crawlspace
• Dining Room
• Double Vanity Sink
• Family Room
• Fireplace
• Formal LR
• Front Porch
• Guest Suite
• His and Hers Master Closets
• Kitchen Island
• Laundry 1st Fl
• Loft / Balcony
• Master Bdrm Upstairs
• Mud Room
• Nook / Breakfast Area
• Rear Porch
• Separate Tub and Shower
• Vaulted Ceilings