Skip to content
Perfect Home Plans
home
about
plans
packages
search
contact
Plan: 97838 SEVILLE II
Plan Details
|
Save Plan
|
Print Plan
|
Modify Plan
|
Reverse Plan
|
Return to Your Search
Details
|
Save
|
See Reverse
|
3D
|
Modify
|
Back to Search
See all 3 photos and rear view
Photographs may reflect modified homes
© copyright by designer
Plan Specification
Total Square Footage:
1,650
Main Level:
1,650
Bedrooms:
3
Baths:
2 Half: 1
Garages:
1
Width/Depth:
73 ft / 52 ft
Foundation:
Basement, Crawl Space, Slab Foundation
View typical construction drawing >
© copyright by designer
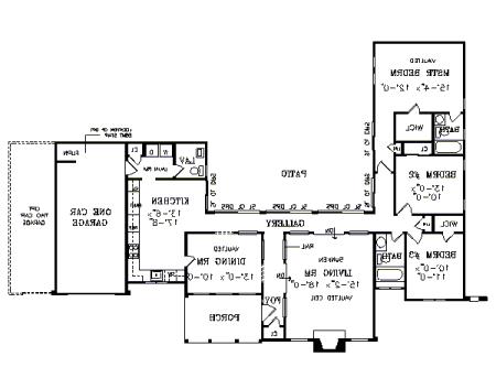
First Floor Plan:
Similar plans:
98273
Add to Favorites
Purchase Plans
House Plan Pricing
PDF BID SET
$710.00
PDF Construction Set - Single Use
$940.00
Five Set Package
$1,050.00
Eight Set Package
$1,125.00
More details about our plan packages
Foundation Options
Crawl Space
$0.00
Slab Foundation
$0.00
Basement
$150.00
Additional Plan Options
Additional Set
$50.00
Material List (if available)
$95.00
High Wind Structural Drawings
$150.00
Multiple Use License (For more than one home)
$250.00
Plan Details
General House Information
1
Number of Stories:
73' 10"
Width:
52' 2"
Depth:
Single
Dwelling Number:
Exterior Style
Florida
Mediterranean
Southwest
Spanish
Facade
Owner's Choice
OwnersChoice
Number of Rooms
3
Bedrooms:
2
Full Baths:
1
Half Baths:
Finished Square Footage
1,650 Sq. Ft.
Main Level:
1,650 Sq. Ft.
Total:
Unfinished Square Footage
329 Sq. Ft.
Garage:
GARAGE
Front
Garage Location:
1
Garage Size:
Foundation
Basement
Crawl Space
Slab Foundation
House And Ceiling Heights
8-'1"
First Floor Ceiling:
16' 9"
Maximum House Height:
Framing Information
Stick
Roof Framing:
2x4
Exterior Wall Framing:
Roof Pitch
8-1/2: 12
Primary:
Roof Load
30
Live:
10
Dead:
Insulation (R)
13
Exterior Wall:
0
Interior Wall:
30
Ceiling:
19
Floor:
Number of Rooms
3
Bedrooms:
2
Full Baths:
1
Half Baths:
Key Features
• 2 & 1/2 Baths
• Attached
• Basement
• Country Kitchen
• Crawlspace
• Fireplace
• Foyer
• Front Porch
• Front-entry
• Lanai
• Slab
Plan: 97838 SEVILLE II
Close
featured plans
open floor plans
modern floor plans
home addition plans
ranch style plans
single story plans
multi story plans
farmhouse plans
cottage plans
lake house plans
small homes
featured plans
open floor plans
modern floor plans
home addition plans
ranch style plans
single story plans
multi story plans
farmhouse plans
cottage plans
lake house plans
small homes