Skip to content
Perfect Home Plans
home
about
plans
packages
search
contact
Plan: 97359-2 LEWISBURG II
Plan Details
|
Save Plan
|
Print Plan
|
Modify Plan
|
Reverse Plan
|
Return to Your Search
Details
|
Save
|
See Reverse
|
3D
|
Modify
|
Back to Search
See all 6 photos and rear view
Photographs may reflect modified homes
© copyright by designer
Plan Specification
Total Square Footage:
1,380
Main Level:
1,380
Bonus:
372
Bedrooms:
3
Baths:
2 Half: 0
Garages:
2
Width/Depth:
48 ft / 43 ft
Foundation:
Basement, Crawl Space, Slab Foundation
View typical construction drawing >
© copyright by designer
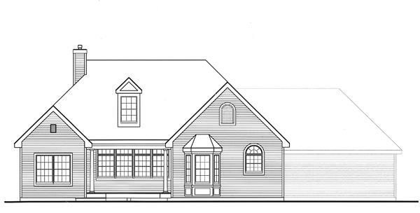
Rear Rendering:
© copyright by designer
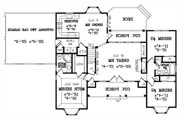
First Floor Plan:
© copyright by designer
Second Floor Plan:
Similar plans:
HFL-1700-SR
,
94319
,
306
,
97359
Add to Favorites
Purchase Plans
House Plan Pricing
PDF BID SET
$595.00
PDF Construction Set - Single Use
$870.00
Five Set Package
$980.00
Eight Set Package
$1,055.00
CAD FILE - single use
$1,695.00
More details about our plan packages
Foundation Options
Crawl Space
$0.00
Slab Foundation
$0.00
Basement
$150.00
Additional Plan Options
Additional Set
$50.00
2 x 6 Exterior Wall Option
$150.00
Material List (if available)
$95.00
Full Reverse Plans (If available)
$350.00
Multiple Use License (For more than one home)
$250.00
High Wind Structural Drawings
$150.00
Plan Details
General House Information
1
Number of Stories:
48' 0"
Width:
43' 4"
Depth:
Single
Dwelling Number:
2nd Floor
Bonus Access:
Exterior Style
Cottage
Country
Farmhouse
Modern
Southern
Facade
OwnersChoice
Number of Rooms
3
Bedrooms:
2
Full Baths:
Finished Square Footage
1,380 Sq. Ft.
Main Level:
1,380 Sq. Ft.
Total:
Unfinished Square Footage
427 Sq. Ft.
Garage:
372 Sq. Ft.
Bonus Room:
GARAGE
Side
Garage Location:
2
Garage Size:
Foundation
Basement
Crawl Space
Slab Foundation
House And Ceiling Heights
9.1
First Floor Ceiling:
24' 2"
Maximum House Height:
Framing Information
Stick
Roof Framing:
2x4
Exterior Wall Framing:
Roof Pitch
12/12
Primary:
Roof Load
30
Live:
10
Dead:
Insulation (R)
13
Exterior Wall:
0
Interior Wall:
30
Ceiling:
19
Floor:
Number of Rooms
3
Bedrooms:
2
Full Baths:
Key Features
• Attached
• Basement
• Covered Front Porch
• Covered Rear Porch
• Crawlspace
• Deck
• Front Porch
• Great Room
• Laundry 1st Fl
• Master Bdrm Main Floor
• Slab
• Suited for narrow lot
• Unfinished Space
• Walk-in Pantry
Plan: 97359-2 LEWISBURG II
Close
featured plans
open floor plans
modern floor plans
home addition plans
ranch style plans
single story plans
multi story plans
farmhouse plans
cottage plans
lake house plans
small homes
featured plans
open floor plans
modern floor plans
home addition plans
ranch style plans
single story plans
multi story plans
farmhouse plans
cottage plans
lake house plans
small homes