Skip to content
Perfect Home Plans
home
about
plans
packages
search
contact
Plan: 94339 SHERMAN
Plan Details
|
Save Plan
|
Print Plan
|
Modify Plan
|
Reverse Plan
|
Return to Your Search
Details
|
Save
|
See Reverse
|
3D
|
Modify
|
Back to Search
See all 5 photos and rear view
Photographs may reflect modified homes
© copyright by designer
Plan Specification
Total Square Footage:
1,747
Main Level:
1,747
Bedrooms:
3
Baths:
2 Half: 0
Garages:
2
Width/Depth:
65 ft / 43 ft
Foundation:
Basement, Crawl Space, Slab Foundation
View typical construction drawing >
© copyright by designer
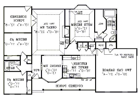
First Floor Plan:
Similar plans:
91312
,
301
,
95367
,
93308
Add to Favorites
Purchase Plans
House Plan Pricing
PDF BID SET
$680.00
PDF Construction Set - Single Use
$940.00
Five Set Package
$1,050.00
Eight Set Package
$1,125.00
CAD FILE - single use
$1,795.00
More details about our plan packages
Foundation Options
Crawl Space
$0.00
Slab Foundation
$0.00
Basement
$150.00
Additional Plan Options
Additional Set
$50.00
2 x 6 Exterior Wall Option
$150.00
Material List (if available)
$95.00
Multiple Use License (For more than one home)
$250.00
Full Reverse Plans (If available)
$350.00
High Wind Structural Drawings
$150.00
Plan Details
General House Information
1
Number of Stories:
65' 10"
Width:
43' 10"
Depth:
Single
Dwelling Number:
Exterior Style
Florida
Old House Classics
Mediterranean
Ranch
Southern
Facade
Owner's Choice
OwnersChoice
Number of Rooms
3
Bedrooms:
2
Full Baths:
Finished Square Footage
1,747 Sq. Ft.
Main Level:
1,747 Sq. Ft.
Total:
Unfinished Square Footage
451 Sq. Ft.
Garage:
177 Sq. Ft.
Porch:
GARAGE
Side
Garage Location:
2
Garage Size:
Foundation
Basement
Crawl Space
Slab Foundation
House And Ceiling Heights
8'-1"
First Floor Ceiling:
23' 0"
Maximum House Height:
Framing Information
Stick
Roof Framing:
2x4
Exterior Wall Framing:
Roof Pitch
8/12
Primary:
Roof Load
30
Live:
10
Dead:
Insulation (R)
13
Exterior Wall:
0
Interior Wall:
30
Ceiling:
19
Floor:
Number of Rooms
3
Bedrooms:
2
Full Baths:
Key Features
• Attached
• Basement
• Crawlspace
• Front Porch
• Slab
Plan: 94339 SHERMAN
Close
featured plans
open floor plans
modern floor plans
home addition plans
ranch style plans
single story plans
multi story plans
farmhouse plans
cottage plans
lake house plans
small homes
featured plans
open floor plans
modern floor plans
home addition plans
ranch style plans
single story plans
multi story plans
farmhouse plans
cottage plans
lake house plans
small homes