Perfect Home Plans

Plan: 94329 HAWTHORNE

Details |  Save | See Reverse | 3D | Modify | Back to Search
Front Photo Front Rendering Rear Rendering First Floor Plan Second Floor Plan
See all 5 photos and rear view
Photographs may reflect modified homes
© copyright by designer
Plan Specification
Total Square Footage: 2,378
Main Level: 1,808
Second Level: 570
Bedrooms: 3
Baths: 2 Half: 1
Garages: 2
Width/Depth: 81 ft / 54 ft
Foundation: Basement, Crawl Space, Slab Foundation
© copyright by designer 
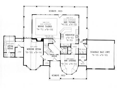
First Floor Plan:
First Floor Plan
© copyright by designer 
Second Floor Plan:
Second Floor Plan
Similar plans: 93305, 305, 92326
Add to Favorites
Purchase Plans
House Plan Pricing
$835.00
$1,125.00
$1,235.00
$1,310.00
$2,095.00
More details about our plan packages
Foundation Options
$0.00
$0.00
$150.00
Additional Plan Options
$50.00
$150.00
$95.00
$150.00
$350.00
$250.00
Plan Details
General House Information
1.5
Number of Stories:
81' 8"
Width:
54' 2"
Depth:
Single
Dwelling Number:
Exterior Style
Old House Classics
Country
Craftsman
Farmhouse
Facade
Owner's Choice
OwnersChoice
Number of Rooms
3
Bedrooms:
2
Full Baths:
1
Half Baths:
Finished Square Footage
1,808 Sq. Ft.
Main Level:
570 Sq. Ft.
Upper Level:
2,378 Sq. Ft.
Total:
Unfinished Square Footage
461 Sq. Ft.
Garage:
GARAGE
Side
Garage Location:
2
Garage Size:
Foundation
Basement
Crawl Space
Slab Foundation
House And Ceiling Heights
9'-1"
First Floor Ceiling:
8'-1"
Second Floor Ceiling:
26' 0"
Maximum House Height:
Framing Information
Stick
Roof Framing:
2x4
Exterior Wall Framing:
Roof Pitch
8/12
Primary:
Roof Load
30
Live:
10
Dead:
Insulation (R)
13
Exterior Wall:
0
Interior Wall:
30
Ceiling:
19
Floor:
Number of Rooms
3
Bedrooms:
2
Full Baths:
1
Half Baths:
Key Features
• 2 Story Volume
• Attached
• Basement
• Butler's Pantry
• Covered Front Porch
• Covered Rear Porch
• Crawlspace
• Dining Room
• Double Vanity Sink
• Fireplace
• Front Porch
• Great Room
• His and Hers Master Closets
• Laundry 1st Fl
• Loft / Balcony
• Master Bdrm Main Floor
• Mud Room
• Nook / Breakfast Area
• Peninsula / Eating Bar
• Separate Tub and Shower
• Sitting Area
• Slab
• Storage Space
• Vaulted Ceilings
• Walk-in Closet
• Wraparound Porch