Skip to content
Perfect Home Plans
home
about
plans
packages
search
contact
Plan: 9307 CANDLEWOOD III
Plan Details
|
Save Plan
|
Print Plan
|
Modify Plan
|
Reverse Plan
|
Return to Your Search
Details
|
Save
|
See Reverse
|
3D
|
Modify
|
Back to Search
See all 7 photos and rear view
Photographs may reflect modified homes
© copyright by designer
Plan Specification
Total Square Footage:
1,676
Main Level:
1,206
Second Level:
470
Bedrooms:
3
Baths:
3 Half: 0
Garages:
0
Width/Depth:
41 ft / 61 ft
Foundation:
Basement, Crawl Space, Slab Foundation
View typical construction drawing >
© copyright by designer
First Floor Plan:
© copyright by designer
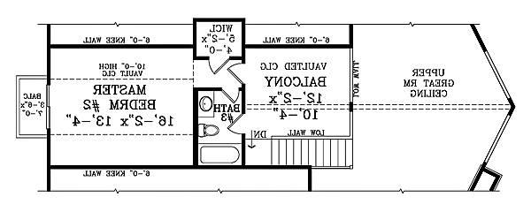
Second Floor Plan:
Similar plans:
6323
,
98274
,
HFL-1160-CW
,
4301
Add to Favorites
Purchase Plans
House Plan Pricing
PDF BID SET
$680.00
PDF Construction Set - Single Use
$940.00
Five Set Package
$1,050.00
Eight Set Package
$1,125.00
CAD FILE - single use
$1,795.00
More details about our plan packages
Foundation Options
Crawl Space
$0.00
Slab Foundation
$0.00
Basement
$150.00
Additional Plan Options
Additional Set
$50.00
2 x 6 Exterior Wall Option
$150.00
Multiple Use License (For more than one home)
$250.00
High Wind Structural Drawings
$150.00
Full Reverse Plans (If available)
$350.00
Plan Details
General House Information
2
Number of Stories:
41' 0"
Width:
61' 9"
Depth:
Single
Dwelling Number:
Exterior Style
Cabin
Mountain
North Carolina
Old House Classics
Tennessee
Texas
Vacation
Beach
Lake
Log
Number of Rooms
3
Bedrooms:
3
Full Baths:
Finished Square Footage
1,206 Sq. Ft.
Main Level:
470 Sq. Ft.
Upper Level:
1,676 Sq. Ft.
Total:
Unfinished Square Footage
70 Sq. Ft.
Porch:
587 Sq. Ft.
Deck:
GARAGE
None
Garage Location:
0
Garage Size:
Foundation
Basement
Crawl Space
Slab Foundation
House And Ceiling Heights
8'-1"
First Floor Ceiling:
8'-1"
Second Floor Ceiling:
29' 0"
Maximum House Height:
Framing Information
Stick
Roof Framing:
2x4
Exterior Wall Framing:
Roof Pitch
18:12
Primary:
11:12
Secondary:
Roof Load
30
Live:
10
Dead:
90
Wind:
Insulation (R)
13
Exterior Wall:
0
Interior Wall:
30
Ceiling:
19
Floor:
Number of Rooms
3
Bedrooms:
3
Full Baths:
Key Features
• 2 Master Suites
• Basement
• Covered Front Porch
• Crawlspace
• Deck
• Fireplace
• Foyer
• Great Room
• Laundry 1st Fl
• Loft / Balcony
• Master Bdrm Main Floor
• Open Floor Plan
• Peninsula / Eating Bar
• Slab
• Suited for narrow lot
• Suited for sloping lot
• Suited for view lot
• Vaulted Ceilings
• Walk-in Closet
Plan: 9307 CANDLEWOOD III
Close
featured plans
open floor plans
modern floor plans
home addition plans
ranch style plans
single story plans
multi story plans
farmhouse plans
cottage plans
lake house plans
small homes
featured plans
open floor plans
modern floor plans
home addition plans
ranch style plans
single story plans
multi story plans
farmhouse plans
cottage plans
lake house plans
small homes