Skip to content
Perfect Home Plans
home
about
plans
packages
search
contact
Plan: 9305 CRAFTSMAN COTTAGE II
Plan Details
|
Save Plan
|
Print Plan
|
Modify Plan
|
Reverse Plan
|
Return to Your Search
Details
|
Save
|
See Reverse
|
3D
|
Modify
|
Back to Search
See all 15 photos and rear view
Photographs may reflect modified homes
© copyright by designer
Plan Specification
Total Square Footage:
2,252
Main Level:
975
Second Level:
672
Lower Level:
605
Bedrooms:
4
Baths:
3 Half: 1
Garages:
1
Width/Depth:
42 ft / 36 ft
Foundation:
Walk-out basement
View typical construction drawing >
© copyright by designer
First Floor Plan:
© copyright by designer
Second Floor Plan:
© copyright by designer
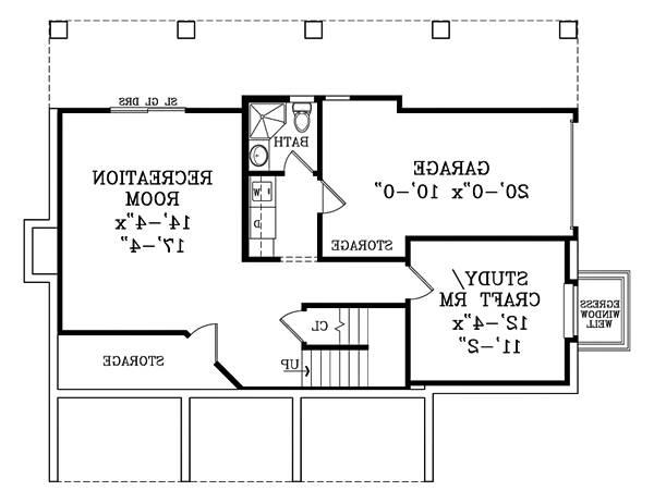
Walk-out Basement Plan:
Similar plans:
06307
,
4301
,
94322
,
N-100
Add to Favorites
Purchase Plans
House Plan Pricing
PDF BID SET
$805.00
PDF Construction Set - Single Use
$1,040.00
Five Set Package
$1,150.00
Eight Set Package
$1,225.00
More details about our plan packages
Foundation Options
Walk-out basement
$0.00
Additional Plan Options
Additional Set
$50.00
High Wind Structural Drawings
$150.00
Multiple Use License (For more than one home)
$250.00
Plan Details
General House Information
1.5
Number of Stories:
42' 0"
Width:
36' 8"
Depth:
Single
Dwelling Number:
Exterior Style
Cabin
Mountain
Old House Classics
Vacation
Bungalow
Cottage
Craftsman
Farmhouse
Lake
Number of Rooms
4
Bedrooms:
3
Full Baths:
1
Half Baths:
Finished Square Footage
975 Sq. Ft.
Main Level:
672 Sq. Ft.
Upper Level:
605 Sq. Ft.
Lower Level:
2,252 Sq. Ft.
Total:
Unfinished Square Footage
236 Sq. Ft.
Garage:
214 Sq. Ft.
Porch:
281 Sq. Ft.
Deck:
GARAGE
Under
Garage Location:
1
Garage Size:
Foundation
Walk-out basement
House And Ceiling Heights
9'-1"
First Floor Ceiling:
8'-1"
Second Floor Ceiling:
25' 0"
Maximum House Height:
Framing Information
Stick
Roof Framing:
2x4
Exterior Wall Framing:
Roof Pitch
12/12
Primary:
8:12
Secondary:
Roof Load
30
Live:
10
Dead:
90
Wind:
Insulation (R)
13
Exterior Wall:
0
Interior Wall:
30
Ceiling:
19
Floor:
Number of Rooms
4
Bedrooms:
3
Full Baths:
1
Half Baths:
Key Features
• Country Kitchen
• Covered Front Porch
• Covered Rear Porch
• Daylight Basement
• Drive-under
• Fireplace
• Foyer
• Great Room
• Home Office
• Laundry 1st Fl
• Loft / Balcony
• Master Bdrm Main Floor
• Nook / Breakfast Area
• Peninsula / Eating Bar
• Rec Room
• Suited for narrow lot
• Suited for sloping lot
• Suited for view lot
• Walk-in Closet
• Walkout Basement
Plan: 9305 CRAFTSMAN COTTAGE II
Close
featured plans
open floor plans
modern floor plans
home addition plans
ranch style plans
single story plans
multi story plans
farmhouse plans
cottage plans
lake house plans
small homes
featured plans
open floor plans
modern floor plans
home addition plans
ranch style plans
single story plans
multi story plans
farmhouse plans
cottage plans
lake house plans
small homes