Perfect Home Plans

Plan: 9304 RICHMOND II

Details |  Save | See Reverse | 3D | Modify | Back to Search
Front Photo Front Rendering Rear Photo Front Photo #2 First Floor Plan Second Floor Plan Optional Walk-out Basement Plan
See all 7 photos and rear view
Photographs may reflect modified homes
© copyright by designer
Plan Specification
Total Square Footage: 2,582
Main Level: 1,793
Second Level: 789
Bedrooms: 4
Baths: 3 Half: 0
Garages: 2
Width/Depth: 69 ft / 59 ft
Foundation: Basement, Crawl Space, Slab Foundation, Walk-out Basement
© copyright by designer 
First Floor Plan:
First Floor Plan
© copyright by designer 
Second Floor Plan:
Second Floor Plan
© copyright by designer 
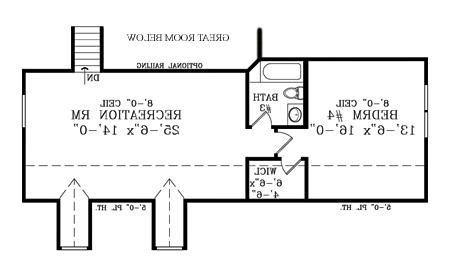
Optional Walk-out Basement Plan:
Optional Walk-out Basement Plan
Similar plans: 93308, 301, 2305, 1303
Add to Favorites
Purchase Plans
House Plan Pricing
$875.00
$1,155.00
$1,265.00
$1,340.00
$2,145.00
More details about our plan packages
Foundation Options
$0.00
$0.00
$150.00
$175.00
Additional Plan Options
$50.00
$150.00
$250.00
$150.00
$350.00
Plan Details
General House Information
1.5
Number of Stories:
69' 10"
Width:
59' 8"
Depth:
Single
Dwelling Number:
Exterior Style
Mountain
Old House Classics
Country
Farmhouse
Ranch
Number of Rooms
4
Bedrooms:
3
Full Baths:
Finished Square Footage
1,793 Sq. Ft.
Main Level:
789 Sq. Ft.
Upper Level:
2,582 Sq. Ft.
Total:
Unfinished Square Footage
471 Sq. Ft.
Garage:
578 Sq. Ft.
Porch:
GARAGE
Side
Garage Location:
2
Garage Size:
Foundation
Basement
Crawl Space
Slab Foundation
Walk-out Basement
House And Ceiling Heights
9'-4"
First Floor Ceiling:
9'-0"
Second Floor Ceiling:
24' 8"
Maximum House Height:
Framing Information
Stick
Roof Framing:
2x4
Exterior Wall Framing:
Roof Pitch
9/12
Primary:
12:12
Secondary:
Roof Load
30
Live:
10
Dead:
90
Wind:
Insulation (R)
13
Exterior Wall:
0
Interior Wall:
30
Ceiling:
19
Floor:
Number of Rooms
4
Bedrooms:
3
Full Baths:
Key Features
• Attached
• Basement
• Covered Front Porch
• Covered Rear Porch
• Crawlspace
• Dining Room
• Double Vanity Sink
• Fireplace
• Foyer
• Great Room
• Guest Suite
• His and Hers Master Closets
• In-law Suite
• Laundry 1st Fl
• Master Bdrm Main Floor
• Nook / Breakfast Area
• Open Floor Plan
• Separate Tub and Shower
• Side-entry
• Sitting Area
• Slab
• Split Bedrooms
• Suited for view lot
• Vaulted Ceilings
• Walk-in Closet
• Walkout Basement
• Wraparound Porch