Skip to content
Perfect Home Plans
home
about
plans
packages
search
contact
Plan: 92328 PEMBERTON
Plan Details
|
Save Plan
|
Print Plan
|
Modify Plan
|
Reverse Plan
|
Return to Your Search
Details
|
Save
|
See Reverse
|
3D
|
Modify
|
Back to Search
See all 5 photos and rear view
Photographs may reflect modified homes
© copyright by designer
Plan Specification
Total Square Footage:
3,027
Main Level:
1,668
Second Level:
1,339
Bedrooms:
4
Baths:
2 Half: 1
Garages:
2
Width/Depth:
68 ft / 41 ft
Foundation:
Basement, Crawl Space
View typical construction drawing >
© copyright by designer
First Floor Plan:
© copyright by designer
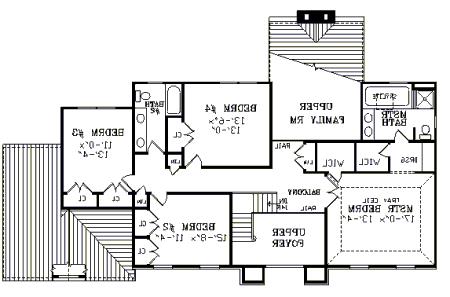
Second Floor Plan:
Similar plans:
3350
,
87105
,
98610
,
89304
Add to Favorites
Purchase Plans
House Plan Pricing
PDF BID SET
$955.00
PDF Construction Set - Single Use
$1,205.00
Five Set Package
$1,315.00
Eight Set Package
$1,390.00
More details about our plan packages
Foundation Options
Crawl Space
$0.00
Basement
$150.00
Additional Plan Options
Additional Set
$50.00
Material List (if available)
$95.00
High Wind Structural Drawings
$150.00
Multiple Use License (For more than one home)
$250.00
Plan Details
General House Information
2
Number of Stories:
68' 4"
Width:
41' 2"
Depth:
Single
Dwelling Number:
Exterior Style
Luxury
Old House Classics
European
French Country
Traditional
Facade
Owner's Choice
OwnersChoice
Number of Rooms
4
Bedrooms:
2
Full Baths:
1
Half Baths:
Finished Square Footage
1,668 Sq. Ft.
Main Level:
1,339 Sq. Ft.
Upper Level:
3,027 Sq. Ft.
Total:
Unfinished Square Footage
417 Sq. Ft.
Garage:
GARAGE
Front
Garage Location:
2
Garage Size:
Foundation
Basement
Crawl Space
House And Ceiling Heights
8'-1"
First Floor Ceiling:
8'-1"
Second Floor Ceiling:
29' 4"
Maximum House Height:
Framing Information
Stick
Roof Framing:
2x4
Exterior Wall Framing:
Roof Pitch
10/12
Primary:
8/ 12
Secondary:
Roof Load
30
Live:
10
Dead:
Insulation (R)
13
Exterior Wall:
0
Interior Wall:
30
Ceiling:
19
Floor:
Number of Rooms
4
Bedrooms:
2
Full Baths:
1
Half Baths:
Key Features
• Attached
• Basement
• Crawlspace
• Front-entry
Plan: 92328 PEMBERTON
Close
featured plans
open floor plans
modern floor plans
home addition plans
ranch style plans
single story plans
multi story plans
farmhouse plans
cottage plans
lake house plans
small homes
featured plans
open floor plans
modern floor plans
home addition plans
ranch style plans
single story plans
multi story plans
farmhouse plans
cottage plans
lake house plans
small homes