Perfect Home Plans

Plan: 92027 BRATTLEBORO II

Details |  Save | See Reverse | 3D | Modify | Back to Search
Front Photo Rear Exterior Front Rendering First Floor Plan Second Floor Plan
See all 5 photos and rear view
Photographs may reflect modified homes
© copyright by designer
Plan Specification
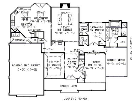
Total Square Footage: 3,189
Main Level: 2,195
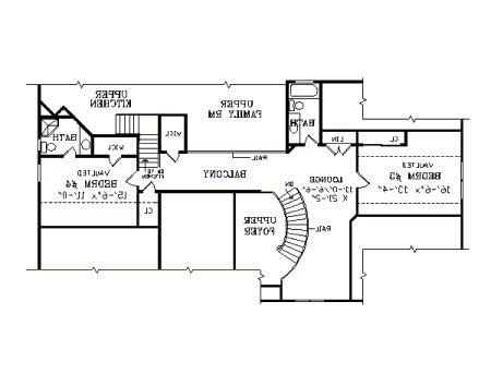
Second Level: 984
Bedrooms: 4
Baths: 4 Half: 1
Garages: 3
Width/Depth: 69 ft / 53 ft
Foundation: Basement, Crawl Space
© copyright by designer 
First Floor Plan:
First Floor Plan
© copyright by designer 
Second Floor Plan:
Second Floor Plan
Similar plans: 309, 98630
Add to Favorites
Purchase Plans
House Plan Pricing
$955.00
$1,205.00
$1,315.00
$1,390.00
More details about our plan packages
Foundation Options
$0.00
$150.00
Additional Plan Options
$250.00
$50.00
$95.00
$150.00
Plan Details
General House Information
1.5
Number of Stories:
69' 2"
Width:
53' 8"
Depth:
Single
Dwelling Number:
Exterior Style
Luxury
Old House Classics
Country
Farmhouse
Southern
Facade
Owner's Choice
OwnersChoice
Number of Rooms
4
Bedrooms:
4
Full Baths:
1
Half Baths:
Finished Square Footage
2,195 Sq. Ft.
Main Level:
984 Sq. Ft.
Upper Level:
3,189 Sq. Ft.
Total:
Unfinished Square Footage
630 Sq. Ft.
Garage:
GARAGE
Side
Garage Location:
3
Garage Size:
Foundation
Basement
Crawl Space
House And Ceiling Heights
8'-1"
First Floor Ceiling:
8'-1"
Second Floor Ceiling:
23' 6"
Maximum House Height:
Framing Information
Stick
Roof Framing:
2x4
Exterior Wall Framing:
Roof Pitch
12/12
Primary:
Roof Load
30
Live:
10
Dead:
Insulation (R)
13
Exterior Wall:
0
Interior Wall:
30
Ceiling:
19
Floor:
Number of Rooms
4
Bedrooms:
4
Full Baths:
1
Half Baths:
Key Features
• 2 Story Volume
• Attached
• Basement
• Country Kitchen
• Covered Front Porch
• Crawlspace
• Dining Room
• Double Vanity Sink
• Family Room
• Formal LR
• Guest Suite
• His and Hers Master Closets
• In-law Suite
• Kitchen Island
• Laundry 1st Fl
• Library/Media Rm
• Loft / Balcony
• Master Bdrm Main Floor
• Nook / Breakfast Area
• Separate Tub and Shower
• Vaulted Ceilings