Perfect Home Plans

Plan: 91314 CEDARHILL

Details |  Save | See Reverse | 3D | Modify | Back to Search
Front Rendering Rear Rendering Family Room First Floor Plan Second Floor Plan
See all 5 photos and rear view
Photographs may reflect modified homes
© copyright by designer
Plan Specification
Total Square Footage: 2,579
Main Level: 1,959
Second Level: 544
Bonus: 202
Bedrooms: 3
Baths: 3 Half: 0
Garages: 2
Width/Depth: 59 ft / 68 ft
Foundation: Basement, Crawl Space, Slab Foundation
© copyright by designer 
First Floor Plan:
First Floor Plan
© copyright by designer 
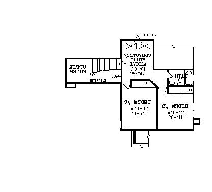
Second Floor Plan:
Second Floor Plan
Similar plans: 98624, 305, 95349
Add to Favorites
Purchase Plans
House Plan Pricing
$875.00
$1,155.00
$1,265.00
$1,340.00
More details about our plan packages
Foundation Options
$0.00
$0.00
$150.00
Additional Plan Options
$50.00
$95.00
$250.00
$150.00
Plan Details
General House Information
1.5
Number of Stories:
59' 8"
Width:
68' 2"
Depth:
Single
Dwelling Number:
Exterior Style
Old House Classics
Contemporary
Modern
Number of Rooms
3
Bedrooms:
3
Full Baths:
Finished Square Footage
1,959 Sq. Ft.
Main Level:
544 Sq. Ft.
Upper Level:
2,579 Sq. Ft.
Total:
Unfinished Square Footage
482 Sq. Ft.
Garage:
202 Sq. Ft.
Bonus Room:
GARAGE
Side
Garage Location:
2
Garage Size:
Foundation
Basement
Crawl Space
Slab Foundation
House And Ceiling Heights
8'-1"
First Floor Ceiling:
8'-1"
Second Floor Ceiling:
27' 0"
Maximum House Height:
Framing Information
Stick
Roof Framing:
2x4
Exterior Wall Framing:
Roof Pitch
5/12
Primary:
9/ 12
Secondary:
Roof Load
30
Live:
10
Dead:
Insulation (R)
13
Exterior Wall:
0
Interior Wall:
30
Ceiling:
19
Floor:
Number of Rooms
3
Bedrooms:
3
Full Baths:
Key Features
• 2 Story Volume
• Attached
• Basement
• Covered Front Porch
• Crawlspace
• Double Vanity Sink
• Family Room
• Fireplace
• Formal LR
• Guest Suite
• Home Office
• In-law Suite
• Kitchen Island
• Laundry 1st Fl
• Loft / Balcony
• Master Bdrm Main Floor
• Mud Room
• Nook / Breakfast Area
• Screened Porch/Sunroom
• Separate Tub and Shower
• Sitting Area
• Slab
• Vaulted Ceilings
• Walk-in Closet