Perfect Home Plans

Plan: 91015 HILLSDALE

Details |  Save | See Reverse | 3D | Modify | Back to Search
Front Rendering Rear Elevation First Floor Plan Second Floor Plan
See all 4 photos and rear view
Photographs may reflect modified homes
© copyright by designer
Plan Specification
Total Square Footage: 2,496
Main Level: 1,338
Second Level: 1,158
Bonus: 337
Bedrooms: 4
Baths: 2 Half: 1
Garages: 2
Width/Depth: 51 ft / 41 ft
Foundation: Basement, Crawl Space
© copyright by designer 
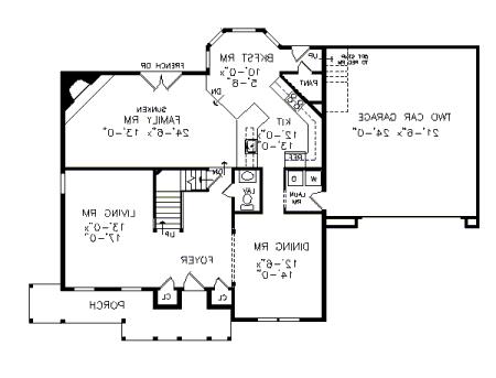
First Floor Plan:
First Floor Plan
© copyright by designer 
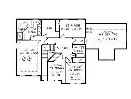
Second Floor Plan:
Second Floor Plan
Similar plans: HFL-3060-LC, 95345, 93309, 93303
Add to Favorites
Purchase Plans
House Plan Pricing
$825.00
$1,125.00
$1,236.00
$1,310.00
More details about our plan packages
Foundation Options
$0.00
$150.00
Additional Plan Options
$50.00
$150.00
$250.00
Plan Details
General House Information
2
Number of Stories:
51' 6"
Width:
41' 10"
Depth:
Single
Dwelling Number:
Exterior Style
European
Traditional
Facade
Owner's Choice
OwnersChoice
Number of Rooms
4
Bedrooms:
2
Full Baths:
1
Half Baths:
Finished Square Footage
1,338 Sq. Ft.
Main Level:
1,158 Sq. Ft.
Upper Level:
2,496 Sq. Ft.
Total:
Unfinished Square Footage
337 Sq. Ft.
Bonus Room:
GARAGE
Front
Garage Location:
2
Garage Size:
Foundation
Basement
Crawl Space
House And Ceiling Heights
8'-1"
First Floor Ceiling:
8'-1"
Second Floor Ceiling:
33' 0"
Maximum House Height:
Framing Information
Stick
Roof Framing:
2x4
Exterior Wall Framing:
Roof Load
30
Live:
10
Dead:
Insulation (R)
13
Exterior Wall:
0
Interior Wall:
30
Ceiling:
19
Floor:
Number of Rooms
4
Bedrooms:
2
Full Baths:
1
Half Baths:
Key Features
• Attached
• Basement
• Covered Rear Porch
• Crawlspace
• Dining Room
• Double Vanity Sink
• Family Room
• Fireplace
• Formal LR
• Foyer
• Front-entry
• Laundry 1st Fl
• Loft / Balcony
• Master Bdrm Upstairs
• Nook / Breakfast Area
• Peninsula / Eating Bar
• Rec Room
• Separate Tub and Shower
• Suited for narrow lot
• Vaulted Ceilings
• Walk-in Closet
• Walk-in Pantry