Perfect Home Plans

Plan: 9032 CHELSEA

Details |  Save | See Reverse | 3D | Modify | Back to Search
Front Photo Front Rendering Rear Elevation Living Room Kitchen First Floor Plan Second Floor Plan
See all 7 photos and rear view
Photographs may reflect modified homes
© copyright by designer
Plan Specification
Total Square Footage: 2,421
Main Level: 1,240
Second Level: 1,181
Bedrooms: 4
Baths: 2 Half: 1
Garages: 2
Width/Depth: 62 ft / 32 ft
Foundation: Basement, Crawl Space, Slab Foundation
© copyright by designer 
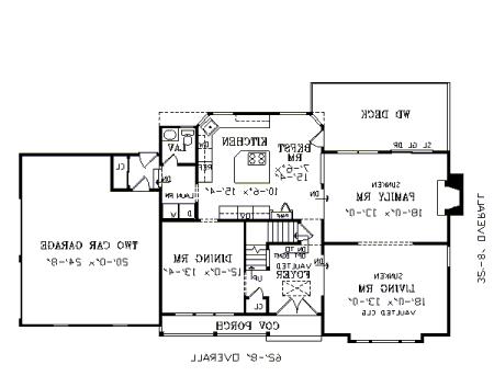
First Floor Plan:
First Floor Plan
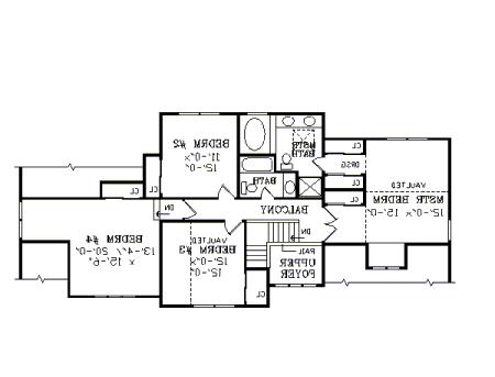
© copyright by designer 
Second Floor Plan:
Second Floor Plan
Similar plans: HFL-3060-LC, 91015, HFL-1690-MR, 98358
Add to Favorites
Purchase Plans
House Plan Pricing
$825.00
$1,125.00
$1,236.00
$1,310.00
More details about our plan packages
Foundation Options
$0.00
$0.00
$150.00
Additional Plan Options
$50.00
$95.00
$250.00
$150.00
Plan Details
General House Information
1.5
Number of Stories:
62' 8"
Width:
32' 8"
Depth:
Single
Dwelling Number:
Exterior Style
Old House Classics
Country
Farmhouse
Traditional
Facade
Owner's Choice
OwnersChoice
Number of Rooms
4
Bedrooms:
2
Full Baths:
1
Half Baths:
Finished Square Footage
1,240 Sq. Ft.
Main Level:
1,181 Sq. Ft.
Upper Level:
2,421 Sq. Ft.
Total:
Unfinished Square Footage
470 Sq. Ft.
Garage:
GARAGE
Side
Garage Location:
2
Garage Size:
Foundation
Basement
Crawl Space
Slab Foundation
House And Ceiling Heights
8'-1"
First Floor Ceiling:
8'-1"
Second Floor Ceiling:
31' 0"
Maximum House Height:
Framing Information
Stick
Roof Framing:
2x4
Exterior Wall Framing:
Roof Pitch
11/12
Primary:
8-1/2: 12
Secondary:
Roof Load
30
Live:
10
Dead:
Insulation (R)
13
Exterior Wall:
0
Interior Wall:
30
Ceiling:
19
Floor:
Number of Rooms
4
Bedrooms:
2
Full Baths:
1
Half Baths:
Key Features
• 2 & 1/2 Baths
• 2 Story Volume
• 4 Bedrooms
• Attached
• Basement
• Country Kitchen
• Covered Front Porch
• Crawlspace
• Deck
• Dining Room
• Double Vanity Sink
• Family Room
• Fireplace
• Formal Dining Room
• Formal LR
• Kitchen Island
• Laundry 1st Fl
• Loft / Balcony
• Master Bdrm Upstairs
• Master Suite
• Mud Room
• Nook / Breakfast Area
• Separate Living / Family Room
• Separate Tub and Shower
• Slab
• Storage Space
• Vaulted Ceilings
• Vaulted Foyer
• Vaulted Living Room