Perfect Home Plans

Plan: 8794 Leesburg

Details |  Save | See Reverse | 3D | Modify | Back to Search
Front View Rear View Side View Kitchen Living Room Dining Room Primary Bedroom 1st Floor Bonus Plan Basement Plan
See all 10 photos and rear view
Photographs may reflect modified homes
© copyright by designer
Plan Specification
Total Square Footage: 1,834
Bonus: 349
Bedrooms: 3
Baths: 2 Half: 0
Garages: 2
Width/Depth: 49 ft / 70 ft
Foundation: Basement, Crawl Space, Slab Foundation
© copyright by designer 
1st Floor:
1st Floor
© copyright by designer 
Bonus Plan:
Bonus Plan
© copyright by designer 
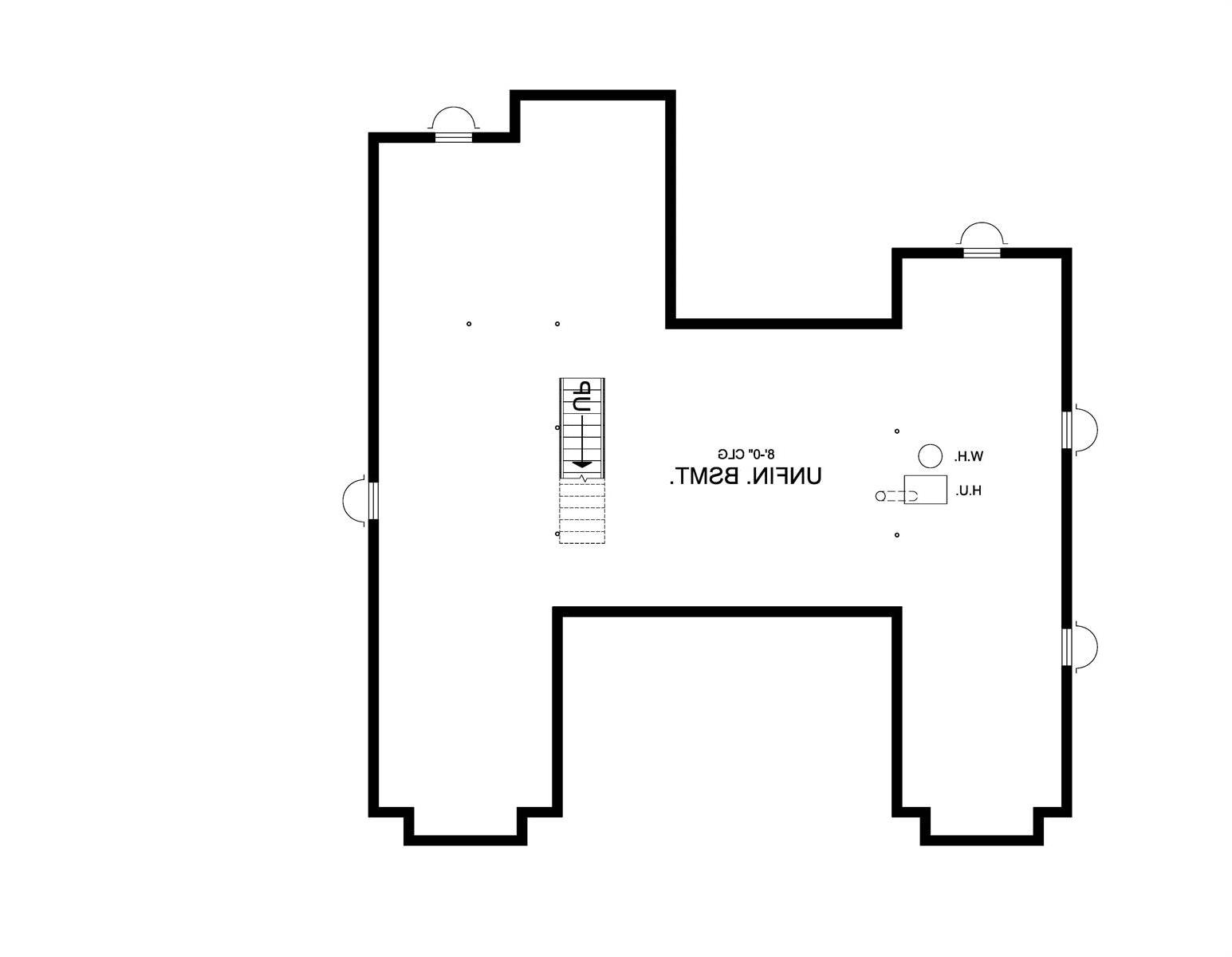
Basement Plan:
Basement Plan
Similar plans: 97359, 1414
Add to Favorites
This plan is not available for online purchasing. Call 1-800-742-6672 for more information.
Plan Details
General House Information
1
Number of Stories:
49' 8"
Width:
70' 0"
Depth:
Single
Dwelling Number:
2nd Floor
Bonus Access:
Exterior Style
Canada
North Carolina
Pet Lovers
Country
Farmhouse
Ranch
Number of Rooms
3
Bedrooms:
2
Full Baths:
Finished Square Footage
1,834 Sq. Ft.
Total:
Unfinished Square Footage
421 Sq. Ft.
Garage:
136 Sq. Ft.
Porch:
205 Sq. Ft.
Deck:
349 Sq. Ft.
Bonus Room:
GARAGE
Side
Garage Location:
2
Garage Size:
Foundation
Basement
Crawl Space
Slab Foundation
House And Ceiling Heights
10
First Floor Ceiling:
8
Second Floor Ceiling:
24' 2"
Maximum House Height:
Framing Information
Stick
Roof Framing:
2x6
Exterior Wall Framing:
Roof Pitch
12/12
Primary:
Roof Load
20
Live:
10
Dead:
Insulation (R)
Per IRC Climate Zones
Number of Rooms
3
Bedrooms:
2
Full Baths:
Key Features
• Attached
• Bonus Room
• Covered Front Porch
• Covered Rear Porch
• Deck
• Dining Room
• Double Vanity Sink
• Family Room
• Fireplace
• Front Porch
• Great Room
• Guest Suite
• Kitchen Island
• Laundry 1st Fl
• Master Bdrm Main Floor
• Mud Room
• Open Floor Plan
• Outdoor Living Space
• Pantry
• Rear Porch
• Separate Tub and Shower
• Side-entry
• Split Bedrooms
• Storage Space
• Suited for corner lot
• Unfinished Space
• Vaulted Ceilings
• Walk-in Closet