Perfect Home Plans

Plan: 8748 CALDWELL

Details |  Save | See Reverse | 3D | Modify | Back to Search
Front Rendering Rear Elevation First Floor Plan
See all 3 photos and rear view
Photographs may reflect modified homes
© copyright by designer
Plan Specification
Total Square Footage: 5,551
Main Level: 5,095
Second Level: 456
Bedrooms: 5
Baths: 6 Half: 1
Garages: 3
Width/Depth: 123 ft / 104 ft
Foundation: Basement
© copyright by designer 
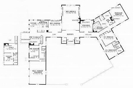
First Floor Plan:
First Floor Plan
Similar plans: 98850, 98749
Add to Favorites
Purchase Plans
House Plan Pricing
$1,325.00
$1,680.00
$1,800.00
$1,910.00
More details about our plan packages
Foundation Options
$150.00
Additional Plan Options
$50.00
$150.00
$250.00
Plan Details
General House Information
1
Number of Stories:
123' 9"
Width:
104' 0"
Depth:
Single
Dwelling Number:
Exterior Style
Luxury
European
French Country
Southern
Facade
Owner's Choice
OwnersChoice
Number of Rooms
5
Bedrooms:
6
Full Baths:
1
Half Baths:
Finished Square Footage
5,095 Sq. Ft.
Main Level:
456 Sq. Ft.
Upper Level:
5,551 Sq. Ft.
Total:
Unfinished Square Footage
671 Sq. Ft.
Garage:
GARAGE
Side
Garage Location:
3
Garage Size:
Foundation
Basement
House And Ceiling Heights
8'-1"
First Floor Ceiling:
Framing Information
Stick
Roof Framing:
2x6
Exterior Wall Framing:
Roof Load
30
Live:
7
Dead:
Insulation (R)
19
Exterior Wall:
0
Interior Wall:
30
Ceiling:
19
Floor:
Number of Rooms
5
Bedrooms:
6
Full Baths:
1
Half Baths:
Key Features
• Attached
• Basement
• Dining Room
• Double Vanity Sink
• Family Room
• Fireplace
• Formal LR
• Foyer
• Front Porch
• Guest Suite
• His and Hers Master Closets
• Home Office
• Kitchen Island
• Laundry 1st Fl
• Library/Media Rm
• Loft / Balcony
• Master Bdrm Main Floor
• Mud Room
• Nook / Breakfast Area
• Peninsula / Eating Bar
• Separate Tub and Shower