Perfect Home Plans

Plan: 8601 WESTWOOD II

Details |  Save | See Reverse | 3D | Modify | Back to Search
Front Rendering Rear Elevation Basic Front Elevation -Two car garage First Floor Plan Second Floor Plan
See all 5 photos and rear view
Photographs may reflect modified homes
© copyright by designer
Plan Specification
Total Square Footage: 3,284
Main Level: 1,797
Second Level: 1,487
Bedrooms: 5
Baths: 3 Half: 1
Garages: 2
Width/Depth: 60 ft / 37 ft
Foundation: Basement, Crawl Space
© copyright by designer 
First Floor Plan:
First Floor Plan
© copyright by designer 
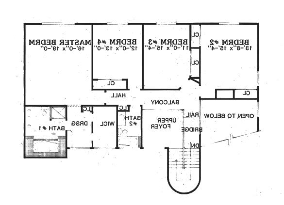
Second Floor Plan:
Second Floor Plan
Similar plans: 06315, 87105
Add to Favorites
Purchase Plans
House Plan Pricing
$1,025.00
$1,280.00
$1,390.00
$1,470.00
More details about our plan packages
Foundation Options
$0.00
$150.00
Additional Plan Options
$50.00
$100.00
$150.00
$250.00
Plan Details
General House Information
2
Number of Stories:
60' 0"
Width:
37' 8"
Depth:
Single
Dwelling Number:
Exterior Style
Luxury
Contemporary
Modern
Number of Rooms
5
Bedrooms:
3
Full Baths:
1
Half Baths:
Finished Square Footage
1,797 Sq. Ft.
Main Level:
1,487 Sq. Ft.
Upper Level:
3,284 Sq. Ft.
Total:
Unfinished Square Footage
422 Sq. Ft.
Garage:
18 Sq. Ft.
Porch:
GARAGE
Front
Garage Location:
2
Garage Size:
Foundation
Basement
Crawl Space
House And Ceiling Heights
8.1
First Floor Ceiling:
8.1
Second Floor Ceiling:
26' 0"
Maximum House Height:
Framing Information
Stick
Roof Framing:
2x4
Exterior Wall Framing:
Roof Pitch
5/12
Primary:
Roof Load
30
Live:
10
Dead:
Insulation (R)
Per IRC Climate Zones
Number of Rooms
5
Bedrooms:
3
Full Baths:
1
Half Baths:
Key Features
• 2 Story Volume
• Attached
• Basement
• Butler's Pantry
• Crawlspace
• Dining Room
• Double Vanity Sink
• Family Room
• Fireplace
• Formal LR
• Foyer
• Front-entry
• Guest Suite
• In-law Suite
• Kitchen Island
• Laundry 1st Fl
• Loft / Balcony
• Master Bdrm Upstairs
• Mud Room
• Open Floor Plan
• Separate Tub and Shower
• Storage Space
• Vaulted Ceilings
• Walk-in Closet