Skip to content
Perfect Home Plans
home
about
plans
packages
search
contact
Plan: 8486 HIGHVIEW
Plan Details
|
Save Plan
|
Print Plan
|
Modify Plan
|
Reverse Plan
|
Return to Your Search
Details
|
Save
|
See Reverse
|
3D
|
Modify
|
Back to Search
See all 7 photos and rear view
Photographs may reflect modified homes
© copyright by designer
Plan Specification
Total Square Footage:
2,063
Main Level:
1,630
Lower Level:
433
Bedrooms:
3
Baths:
2 Half: 0
Garages:
2
Width/Depth:
50 ft / 37 ft
Foundation:
ICF - Basement (Insul. Conc. Forms), Walk-out basement
View typical construction drawing >
© copyright by designer
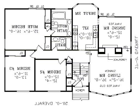
First Floor Plan:
© copyright by designer
Lower Level:
Similar plans:
90306
Add to Favorites
Purchase Plans
House Plan Pricing
PDF BID SET
$785.00
PDF Construction Set - Single Use
$1,040.00
Five Set Package
$1,150.00
Eight Set Package
$1,225.00
More details about our plan packages
Foundation Options
Walk-out basement
$0.00
ICF - Basement (Insul. Conc. Forms)
$150.00
Additional Plan Options
Additional Set
$50.00
Material List (if available)
$85.00
High Wind Structural Drawings
$150.00
Multiple Use License (For more than one home)
$250.00
Plan Details
General House Information
2
Number of Stories:
50' 0"
Width:
37' 0"
Depth:
Single
Dwelling Number:
Exterior Style
Mountain
Old House Classics
Contemporary
Modern
Facade
Owner's Choice
OwnersChoice
Number of Rooms
3
Bedrooms:
2
Full Baths:
Finished Square Footage
1,630 Sq. Ft.
Main Level:
433 Sq. Ft.
Lower Level:
2,063 Sq. Ft.
Total:
Unfinished Square Footage
510 Sq. Ft.
Garage:
GARAGE
Under
Garage Location:
2
Garage Size:
Foundation
ICF - Basement (Insul. Conc. Forms)
Walk-out basement
House And Ceiling Heights
8'-1"
First Floor Ceiling:
25' 0"
Maximum House Height:
Framing Information
Stick
Roof Framing:
2x4
Exterior Wall Framing:
Roof Pitch
4: 12
Primary:
9: 12
Secondary:
Roof Load
30
Live:
10
Dead:
Insulation (R)
13
Exterior Wall:
0
Interior Wall:
30
Ceiling:
19
Floor:
Number of Rooms
3
Bedrooms:
2
Full Baths:
Key Features
• Attached
• Basement
• Daylight Basement
• Dining Room
• Double Vanity Sink
• Drive Under Garage
• Drive-under
• Expandable
• Fireplace
• Formal Dining Room
• Foyer
• Front Porch
• Great Room
• Laundry 1st Fl
• Master Bdrm Main Floor
• Master Suite
• Rec Room
• Storage Space
• Suited for narrow lot
• Suited for sloping lot
• Suited for view lot
• Vaulted Ceilings
• Walkout Basement
Plan: 8486 HIGHVIEW
Close
featured plans
open floor plans
modern floor plans
home addition plans
ranch style plans
single story plans
multi story plans
farmhouse plans
cottage plans
lake house plans
small homes
featured plans
open floor plans
modern floor plans
home addition plans
ranch style plans
single story plans
multi story plans
farmhouse plans
cottage plans
lake house plans
small homes