Skip to content
Perfect Home Plans
home
about
plans
packages
search
contact
Plan: 8272 CHESTNUT
Plan Details
|
Save Plan
|
Print Plan
|
Modify Plan
|
Reverse Plan
|
Return to Your Search
Details
|
Save
|
See Reverse
|
3D
|
Modify
|
Back to Search
See all 6 photos and rear view
Photographs may reflect modified homes
© copyright by designer
Plan Specification
Total Square Footage:
1,911
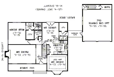
Main Level:
1,295
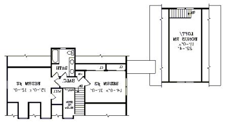
Second Level:
616
Bonus:
303
Bedrooms:
3
Baths:
2 Half: 1
Garages:
2
Width/Depth:
41 ft / 34 ft
Foundation:
Basement, Crawl Space, Slab Foundation
View typical construction drawing >
© copyright by designer
First Floor Plan:
© copyright by designer
Second Floor Plan:
Similar plans:
303
,
1318
,
93311
Add to Favorites
Purchase Plans
House Plan Pricing
PDF BID SET
$805.00
PDF Construction Set - Single Use
$1,040.00
Five Set Package
$1,150.00
Eight Set Package
$1,225.00
More details about our plan packages
Foundation Options
Crawl Space
$0.00
Slab Foundation
$0.00
Basement
$150.00
Additional Plan Options
Additional Set
$50.00
Material List (if available)
$95.00
Multiple Use License (For more than one home)
$250.00
High Wind Structural Drawings
$150.00
Plan Details
General House Information
1.5
Number of Stories:
41' 1"
Width:
34' 0"
Depth:
Single
Dwelling Number:
2nd Floor
Bonus Access:
Exterior Style
Old House Classics
Country
Craftsman
Victorian
Facade
Owner's Choice
OwnersChoice
Number of Rooms
3
Bedrooms:
2
Full Baths:
1
Half Baths:
Finished Square Footage
1,295 Sq. Ft.
Main Level:
616 Sq. Ft.
Upper Level:
1,911 Sq. Ft.
Total:
Unfinished Square Footage
537 Sq. Ft.
Garage:
303 Sq. Ft.
Bonus Room:
GARAGE
Side
Garage Location:
2
Garage Size:
Foundation
Basement
Crawl Space
Slab Foundation
House And Ceiling Heights
8'-1"
First Floor Ceiling:
8'-1"
Second Floor Ceiling:
Framing Information
Stick
Roof Framing:
2x4
Exterior Wall Framing:
Roof Pitch
11/12
Primary:
18/ 12
Secondary:
Roof Load
30
Live:
10
Dead:
Insulation (R)
13
Exterior Wall:
0
Interior Wall:
30
Ceiling:
19
Floor:
Number of Rooms
3
Bedrooms:
2
Full Baths:
1
Half Baths:
Key Features
• 2 & 1/2 Baths
• Basement
• Bonus Room
• Country Kitchen
• Covered Front Porch
• Crawlspace
• Detached
• Dining Room
• Fireplace
• Formal Dining Room
• Formal LR
• Foyer
• Front-entry
• Laundry 1st Fl
• Master Bdrm Main Floor
• Mud Room
• Peninsula / Eating Bar
• Powder Room
• Separate Living / Family Room
• Slab
• Suited for narrow lot
• Vaulted Foyer
• Walk-in Closet
Plan: 8272 CHESTNUT
Close
featured plans
open floor plans
modern floor plans
home addition plans
ranch style plans
single story plans
multi story plans
farmhouse plans
cottage plans
lake house plans
small homes
featured plans
open floor plans
modern floor plans
home addition plans
ranch style plans
single story plans
multi story plans
farmhouse plans
cottage plans
lake house plans
small homes