Skip to content
Perfect Home Plans
home
about
plans
packages
search
contact
Plan: 8001 ALBEMARLE
Plan Details
|
Save Plan
|
Print Plan
|
Modify Plan
|
Reverse Plan
|
Return to Your Search
Details
|
Save
|
See Reverse
|
3D
|
Modify
|
Back to Search
See all 5 photos and rear view
Photographs may reflect modified homes
© copyright by designer
Plan Specification
Total Square Footage:
2,364
Main Level:
1,182
Lower Level:
1,182
Bonus:
679
Bedrooms:
4
Baths:
3 Half: 0
Garages:
0
Width/Depth:
42 ft / 44 ft
Foundation:
Basement, Walk-out Basement
View typical construction drawing >
© copyright by designer
First Floor Plan:
© copyright by designer
Bonus Second Floor Plan:
© copyright by designer
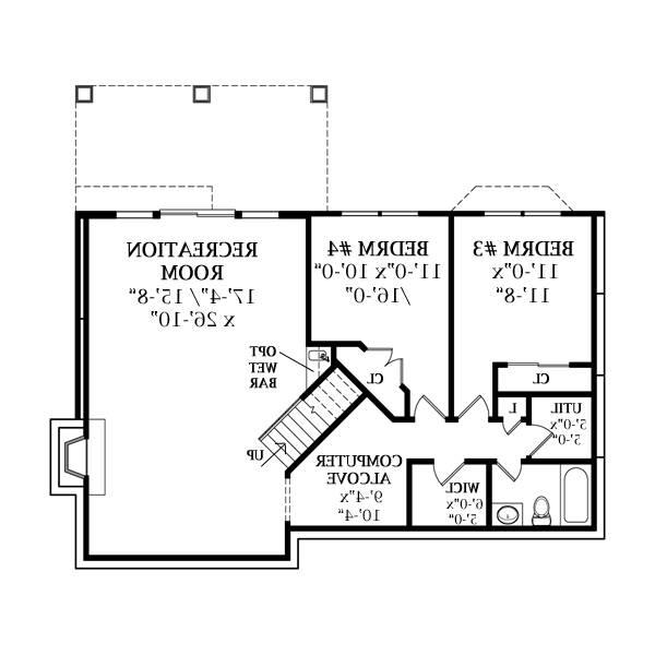
Lower Level:
Similar plans:
94341
,
4301
,
94322
Add to Favorites
Purchase Plans
House Plan Pricing
PDF BID SET
$835.00
PDF Construction Set - Single Use
$1,125.00
Five Set Package
$1,235.00
Eight Set Package
$1,310.00
CAD FILE - single use
$2,095.00
More details about our plan packages
Foundation Options
Basement
$150.00
Walk-out Basement
$175.00
Additional Plan Options
Additional Set
$50.00
2 x 6 Exterior Wall Option
$150.00
Material List (if available)
$95.00
Full Reverse Plans (If available)
$350.00
Multiple Use License (For more than one home)
$250.00
High Wind Structural Drawings
$150.00
Plan Details
General House Information
1.5
Number of Stories:
42' 0"
Width:
44' 0"
Depth:
Single
Dwelling Number:
2nd Floor
Bonus Access:
Exterior Style
Mountain
Contemporary
Country
Craftsman
Facade
OwnersChoice
Number of Rooms
4
Bedrooms:
3
Full Baths:
Finished Square Footage
1,182 Sq. Ft.
Main Level:
1,182 Sq. Ft.
Lower Level:
2,364 Sq. Ft.
Total:
Unfinished Square Footage
158 Sq. Ft.
Porch:
178 Sq. Ft.
Deck:
679 Sq. Ft.
Bonus Room:
GARAGE
0
Garage Size:
Foundation
Basement
Walk-out Basement
House And Ceiling Heights
9'-1"
First Floor Ceiling:
8'-1"
Second Floor Ceiling:
24' 7"
Maximum House Height:
Framing Information
Stick
Roof Framing:
2x4
Exterior Wall Framing:
Roof Load
30
Live:
7
Dead:
90
Wind:
Insulation (R)
13
Exterior Wall:
0
Interior Wall:
38
Ceiling:
19
Floor:
Number of Rooms
4
Bedrooms:
3
Full Baths:
Key Features
• Arches
• Basement
• Bonus Room
• Daylight Basement
• Fireplace
• Front Porch
• Great Room
• Kitchen Island
• Laundry 1st Fl
• Loft / Balcony
• Master Bdrm Main Floor
• None
• Open Floor Plan
• Separate Tub and Shower
• Suited for narrow lot
• Suited for sloping lot
• Unfinished Space
• Vaulted Ceilings
• Walk-in Closet
• Walkout Basement
Plan: 8001 ALBEMARLE
Close
featured plans
open floor plans
modern floor plans
home addition plans
ranch style plans
single story plans
multi story plans
farmhouse plans
cottage plans
lake house plans
small homes
featured plans
open floor plans
modern floor plans
home addition plans
ranch style plans
single story plans
multi story plans
farmhouse plans
cottage plans
lake house plans
small homes