Skip to content
Perfect Home Plans
home
about
plans
packages
search
contact
Plan: 7728 NORWOOD
Plan Details
|
Save Plan
|
Print Plan
|
Modify Plan
|
Reverse Plan
|
Return to Your Search
Details
|
Save
|
See Reverse
|
3D
|
Modify
|
Back to Search
See all 7 photos and rear view
Photographs may reflect modified homes
© copyright by designer
Plan Specification
Total Square Footage:
2,036
Main Level:
1,395
Lower Level:
641
Bedrooms:
4
Baths:
3 Half: 0
Garages:
2
Width/Depth:
52 ft / 32 ft
Foundation:
Walk-out basement
View typical construction drawing >
© copyright by designer
Front Rendering:
© copyright by designer
First Floor Plan:
© copyright by designer
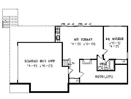
Lower Level:
Similar plans:
1301
,
98711
,
90308
,
7728
Add to Favorites
Purchase Plans
House Plan Pricing
PDF BID SET
$805.00
PDF Construction Set - Single Use
$1,040.00
Five Set Package
$1,150.00
Eight Set Package
$1,225.00
More details about our plan packages
Foundation Options
Walk-out basement
$0.00
Additional Plan Options
Additional Set
$50.00
Material List (if available)
$95.00
Multiple Use License (For more than one home)
$250.00
High Wind Structural Drawings
$150.00
Plan Details
General House Information
1
Number of Stories:
52' 0"
Width:
32' 0"
Depth:
Single
Dwelling Number:
Exterior Style
Mountain
Old House Classics
Cottage
Modern
Ranch
Facade
Owner's Choice
OwnersChoice
Number of Rooms
4
Bedrooms:
3
Full Baths:
Finished Square Footage
1,395 Sq. Ft.
Main Level:
641 Sq. Ft.
Lower Level:
2,036 Sq. Ft.
Total:
Unfinished Square Footage
458 Sq. Ft.
Garage:
232 Sq. Ft.
Deck:
GARAGE
Under
Garage Location:
2
Garage Size:
Foundation
Walk-out basement
House And Ceiling Heights
8'-1"
First Floor Ceiling:
18' 6"
Maximum House Height:
Framing Information
Stick
Roof Framing:
2x4
Exterior Wall Framing:
Roof Pitch
6/12
Primary:
Roof Load
30
Live:
10
Dead:
Insulation (R)
13
Exterior Wall:
0
Interior Wall:
30
Ceiling:
19
Floor:
Number of Rooms
4
Bedrooms:
3
Full Baths:
Key Features
• Attached
• Daylight Basement
• Deck
• Dining Room
• Drive Under Garage
• Drive-under
• Formal LR
• Front Porch
• Laundry 1st Fl
• Master Bdrm Main Floor
• Mud Room
• Nook / Breakfast Area
• Rec Room
• Suited for sloping lot
• Walk-in Closet
• Walkout / Finished Basement
• Walkout Basement
• Wrap Around Porches
• Wraparound Porch
Plan: 7728 NORWOOD
Close
featured plans
open floor plans
modern floor plans
home addition plans
ranch style plans
single story plans
multi story plans
farmhouse plans
cottage plans
lake house plans
small homes
featured plans
open floor plans
modern floor plans
home addition plans
ranch style plans
single story plans
multi story plans
farmhouse plans
cottage plans
lake house plans
small homes