Perfect Home Plans

Plan: 7622 BAYBERRY

Details |  Save | See Reverse | 3D | Modify | Back to Search
Great room reflecting modifications made by the homeowner Front view reflecting modifications made by the homeowner Front Rendering Rear Elevation Bedroom reflecting modifications made by the homeowner Bedroom reflecting modifications made by the homeowner Great room reflecting modifications made by the homeowner Great room reflecting modifications made by the homeowner Great room reflecting modifications made by the homeowner Great Room Bathroom reflecting modifications made by the homeowner Bathroom reflecting modifications made by the homeowner Bathroom reflecting modifications made by the homeowner Upstairs reflecting modifications made by the homeowner Loft reflecting modifications made by the homeowner Outdoor living reflecting modifications made by the homeowner Outdoor living reflecting modifications made by the homeowner Kitchen reflecting modifications made by the homeowner Kitchen reflecting modifications made by the homeowner Front Rendering First Floor Plan Second Floor Plan
See all 22 photos and rear view
Photographs may reflect modified homes
© copyright by designer
Plan Specification
Total Square Footage: 1,267
Main Level: 924
Second Level: 343
Bedrooms: 3
Baths: 2 Half: 0
Garages: 0
Width/Depth: 40 ft / 38 ft
Foundation: Basement, Crawl Space, Slab Foundation
© copyright by designer 
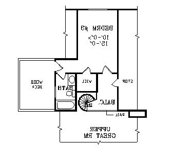
First Floor Plan:
First Floor Plan
© copyright by designer 
Second Floor Plan:
Second Floor Plan
Similar plans: 98274, HFL-1382, HFL-1160-CW, 97729
Add to Favorites
Purchase Plans
House Plan Pricing
$640.00
$870.00
$980.00
$1,055.00
More details about our plan packages
Foundation Options
$0.00
$0.00
$150.00
Additional Plan Options
$250.00
$50.00
$95.00
$150.00
Plan Details
General House Information
1.5
Number of Stories:
40' 8"
Width:
38' 10"
Depth:
Single
Dwelling Number:
Exterior Style
Cabin
Mountain
Old House Classics
Vacation
A-Frame
Contemporary
Lake
Modern
Facade
Owner's Choice
OwnersChoice
Number of Rooms
3
Bedrooms:
2
Full Baths:
Finished Square Footage
924 Sq. Ft.
Main Level:
343 Sq. Ft.
Upper Level:
1,267 Sq. Ft.
Total:
Unfinished Square Footage
215 Sq. Ft.
Porch:
128 Sq. Ft.
Deck:
GARAGE
0
Garage Size:
Foundation
Basement
Crawl Space
Slab Foundation
House And Ceiling Heights
8'-1"
First Floor Ceiling:
8'-1"
Second Floor Ceiling:
Framing Information
Stick
Roof Framing:
2x4
Exterior Wall Framing:
Roof Pitch
12/12
Primary:
Roof Load
20
Live:
15
Dead:
Insulation (R)
13
Exterior Wall:
0
Interior Wall:
30
Ceiling:
19
Floor:
Number of Rooms
3
Bedrooms:
2
Full Baths:
Key Features
• Basement
• Crawlspace
• Deck
• Fireplace
• Grand Room
• Great Room
• Laundry 1st Fl
• Loft / Balcony
• Master Bdrm Upstairs
• Master Bedroom Up
• None
• Peninsula / Eating Bar
• Screened Porch/Sunroom
• Slab
• Storage Space
• Suited for narrow lot
• Vaulted Ceilings
• Walk-in Closet