Perfect Home Plans

Plan: 6357-2 EDGEMONT II

Details |  Save | See Reverse | 3D | Modify | Back to Search
Front Rendering Rear Elevation Family Room Front Rendering #2 First Floor Plan Optional Floor Plan
See all 6 photos and rear view
Photographs may reflect modified homes
© copyright by designer
Plan Specification
Total Square Footage: 1,667
Main Level: 1,667
Bedrooms: 3
Baths: 2 Half: 0
Garages: 2
Width/Depth: 70 ft / 34 ft
Foundation: Basement, Crawl Space, Slab Foundation
© copyright by designer 
Front Rendering #2:
Front Rendering #2
© copyright by designer 
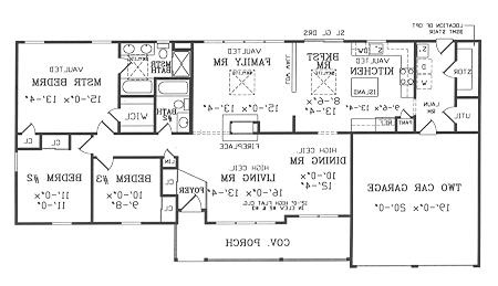
First Floor Plan:
First Floor Plan
© copyright by designer 
Optional Floor Plan:
Optional Floor Plan
Similar plans: 90303, HFL-3055-AA, HFL-1650-TR, 92321
Add to Favorites
Purchase Plans
House Plan Pricing
$680.00
$940.00
$1,050.00
$1,125.00
$1,795.00
More details about our plan packages
Foundation Options
$0.00
$0.00
$150.00
Additional Plan Options
$50.00
$150.00
$95.00
$350.00
$250.00
$150.00
Plan Details
General House Information
1
Number of Stories:
70' 0"
Width:
34' 4"
Depth:
Single
Dwelling Number:
Exterior Style
Old House Classics
Country
Farmhouse
Ranch
Facade
Owner's Choice
OwnersChoice
Number of Rooms
3
Bedrooms:
2
Full Baths:
Finished Square Footage
1,667 Sq. Ft.
Main Level:
1,667 Sq. Ft.
Total:
Unfinished Square Footage
396 Sq. Ft.
Garage:
GARAGE
Front
Garage Location:
2
Garage Size:
Foundation
Basement
Crawl Space
Slab Foundation
House And Ceiling Heights
8'-1"
First Floor Ceiling:
Framing Information
Stick
Roof Framing:
2x4
Exterior Wall Framing:
Roof Pitch
6/12
Primary:
Roof Load
30
Live:
10
Dead:
Insulation (R)
13
Exterior Wall:
0
Interior Wall:
30
Ceiling:
19
Floor:
Number of Rooms
3
Bedrooms:
2
Full Baths:
Key Features
• Attached
• Basement
• Country Kitchen
• Covered Front Porch
• Crawlspace
• Dining Room
• Double Vanity Sink
• Family Room
• Fireplace
• Formal Dining Room
• Formal LR
• Foyer
• Front-entry
• Gourmet Kitchen
• His and Hers Master Closets
• Kitchen Island
• Laundry 1st Fl
• Master Bdrm Main Floor
• Master Suite
• Mud Room
• Nook / Breakfast Area
• Separate Living / Family Room
• Separate Tub and Shower
• Skylights
• Slab
• Vaulted Ceilings
• Volume Foyer
• Walk-in Closet