Perfect Home Plans

Plan: 6319 BERKELEY

Details |  Save | See Reverse | 3D | Modify | Back to Search
Front Photo Rear Elevation First Floor Plan Second Floor Plan
See all 4 photos and rear view
Photographs may reflect modified homes
© copyright by designer
Plan Specification
Total Square Footage: 3,309
Main Level: 2,104
Second Level: 1,205
Bedrooms: 4
Baths: 3 Half: 1
Garages: 2
Width/Depth: 57 ft / 56 ft
Foundation: Basement, Crawl Space
© copyright by designer 
First Floor Plan:
First Floor Plan
© copyright by designer 
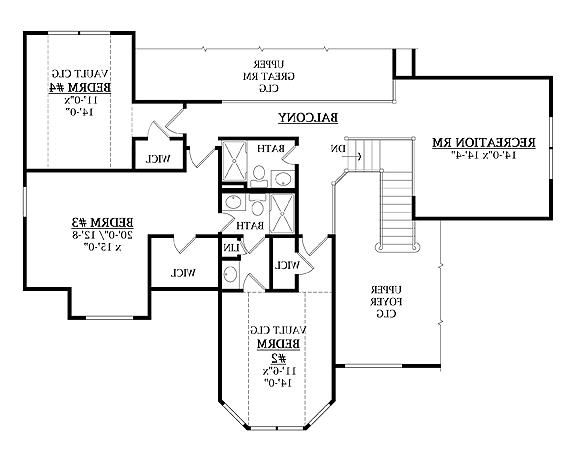
Second Floor Plan:
Second Floor Plan
Similar plans: 87105, 9301
Add to Favorites
Purchase Plans
House Plan Pricing
$1,325.00
$1,680.00
$1,800.00
$1,910.00
More details about our plan packages
Foundation Options
$0.00
$150.00
Additional Plan Options
$50.00
$150.00
$250.00
Plan Details
General House Information
2
Number of Stories:
57' 10"
Width:
56' 2"
Depth:
Single
Dwelling Number:
None
Bonus Access:
Exterior Style
Luxury
European
Traditional
Facade
OwnersChoice
Number of Rooms
4
Bedrooms:
3
Full Baths:
1
Half Baths:
Finished Square Footage
2,104 Sq. Ft.
Main Level:
1,205 Sq. Ft.
Upper Level:
3,309 Sq. Ft.
Total:
Unfinished Square Footage
413 Sq. Ft.
Garage:
GARAGE
Front
Garage Location:
2
Garage Size:
Foundation
Basement
Crawl Space
House And Ceiling Heights
9'-1"
First Floor Ceiling:
8'-1"
Second Floor Ceiling:
30' 0"
Maximum House Height:
Framing Information
Stick
Roof Framing:
2x4
Exterior Wall Framing:
Roof Pitch
9/12
Primary:
Roof Load
30
Live:
10
Dead:
90
Wind:
Insulation (R)
13
Exterior Wall:
0
Interior Wall:
30
Ceiling:
19
Floor:
Number of Rooms
4
Bedrooms:
3
Full Baths:
1
Half Baths:
Key Features
• 2 Story Volume
• Attached
• Basement
• Butler's Pantry
• Crawlspace
• Dining Room
• Double Vanity Sink
• Fireplace
• Formal LR
• Front Porch
• Front-entry
• Great Room
• Guest Suite
• His and Hers Master Closets
• In-law Suite
• Laundry 1st Fl
• Loft / Balcony
• Master Bdrm Main Floor
• Nook / Breakfast Area
• Open Floor Plan
• Peninsula / Eating Bar
• Rec Room
• Separate Tub and Shower
• Vaulted Ceilings
• Walk-in Pantry