Skip to content
Perfect Home Plans
home
about
plans
packages
search
contact
Plan: 5376 DURHAM
Plan Details
|
Save Plan
|
Print Plan
|
Modify Plan
|
Reverse Plan
|
Return to Your Search
Details
|
Save
|
See Reverse
|
3D
|
Modify
|
Back to Search
See all 6 photos and rear view
Photographs may reflect modified homes
© copyright by designer
Plan Specification
Total Square Footage:
2,092
Main Level:
1,152
Second Level:
940
Bonus:
300
Bedrooms:
4
Baths:
2 Half: 1
Garages:
2
Width/Depth:
54 ft / 43 ft
Foundation:
Basement, Crawl Space, Slab Foundation
View typical construction drawing >
© copyright by designer
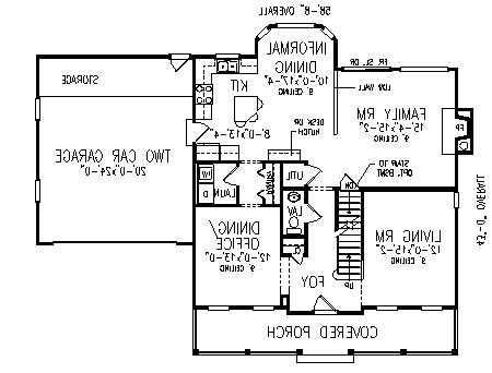
First Floor Plan:
© copyright by designer
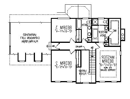
Second Floor Plan:
Similar plans:
HFL-1860-CL
,
98616
,
HFL-1130-AM
,
HFL-1070-RQ
Add to Favorites
Purchase Plans
House Plan Pricing
PDF BID SET
$745.00
PDF Construction Set - Single Use
$1,040.00
Five Set Package
$1,150.00
Eight Set Package
$1,225.00
CAD FILE - single use
$1,995.00
More details about our plan packages
Foundation Options
Crawl Space
$0.00
Slab Foundation
$0.00
Basement
$150.00
Additional Plan Options
Additional Set
$50.00
2 x 6 Exterior Wall Option
$150.00
Multiple Use License (For more than one home)
$250.00
Full Reverse Plans (If available)
$350.00
High Wind Structural Drawings
$150.00
Plan Details
General House Information
2
Number of Stories:
54' 8"
Width:
43' 0"
Depth:
Single
Dwelling Number:
2nd Floor
Bonus Access:
Exterior Style
Old House Classics
Country
Farmhouse
Southern
Facade
Owner's Choice
OwnersChoice
Number of Rooms
4
Bedrooms:
2
Full Baths:
1
Half Baths:
Finished Square Footage
1,152 Sq. Ft.
Main Level:
940 Sq. Ft.
Upper Level:
2,092 Sq. Ft.
Total:
Unfinished Square Footage
502 Sq. Ft.
Garage:
300 Sq. Ft.
Bonus Room:
GARAGE
Side
Garage Location:
2
Garage Size:
Foundation
Basement
Crawl Space
Slab Foundation
House And Ceiling Heights
9'-1"
First Floor Ceiling:
8'-1"
Second Floor Ceiling:
28' 0"
Maximum House Height:
Framing Information
Stick
Roof Framing:
2x4
Exterior Wall Framing:
Roof Pitch
7-1/2: 12
Primary:
Roof Load
30
Live:
10
Dead:
Insulation (R)
13
Exterior Wall:
0
Interior Wall:
30
Ceiling:
19
Floor:
Number of Rooms
4
Bedrooms:
2
Full Baths:
1
Half Baths:
Key Features
• Attached
• Basement
• Bonus Room
• Country Kitchen
• Covered Front Porch
• Crawlspace
• Dining Room
• Double Vanity Sink
• Family Room
• Fireplace
• Foyer
• Front-entry
• Home Office
• Kitchen Island
• Loft / Balcony
• Master Bdrm Upstairs
• Nook / Breakfast Area
• Separate Tub and Shower
• Slab
• Suited for narrow lot
• Unfinished Space
• Vaulted Ceilings
• Walk-in Closet
Plan: 5376 DURHAM
Close
featured plans
open floor plans
modern floor plans
home addition plans
ranch style plans
single story plans
multi story plans
farmhouse plans
cottage plans
lake house plans
small homes
featured plans
open floor plans
modern floor plans
home addition plans
ranch style plans
single story plans
multi story plans
farmhouse plans
cottage plans
lake house plans
small homes