Perfect Home Plans

Plan: 3002 MALIBU

Details |  Save | See Reverse | 3D | Modify | Back to Search
Front Rendering Rear Elevation Front Rendering #2 Front Photo First Floor Plan
See all 5 photos and rear view
Photographs may reflect modified homes
© copyright by designer
Plan Specification
Total Square Footage: 3,002
Main Level: 3,002
Bedrooms: 4
Baths: 3 Half: 1
Garages: 2
Width/Depth: 74 ft / 67 ft
Foundation: Basement, Crawl Space
© copyright by designer 
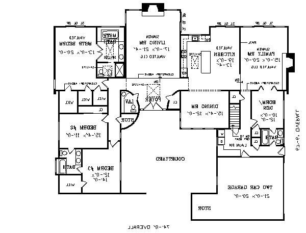
First Floor Plan:
First Floor Plan
Similar plans: 93304-WO, E-117
Add to Favorites
Purchase Plans
House Plan Pricing
$955.00
$1,205.00
$1,315.00
$1,390.00
More details about our plan packages
Foundation Options
$0.00
$150.00
Additional Plan Options
$50.00
$95.00
$250.00
$150.00
Plan Details
General House Information
1
Number of Stories:
74' 8"
Width:
67' 6"
Depth:
Single
Dwelling Number:
Exterior Style
Luxury
Contemporary
Modern
Ranch
Facade
Owner's Choice
OwnersChoice
Number of Rooms
4
Bedrooms:
3
Full Baths:
1
Half Baths:
Finished Square Footage
3,002 Sq. Ft.
Main Level:
3,002 Sq. Ft.
Total:
Unfinished Square Footage
511 Sq. Ft.
Garage:
GARAGE
Side
Garage Location:
2
Garage Size:
Foundation
Basement
Crawl Space
House And Ceiling Heights
8'-1"
First Floor Ceiling:
23' 10"
Maximum House Height:
Framing Information
Stick
Roof Framing:
2x4
Exterior Wall Framing:
Roof Pitch
8-1/2: 12
Primary:
Roof Load
30
Live:
10
Dead:
Insulation (R)
13
Exterior Wall:
0
Interior Wall:
30
Ceiling:
19
Floor:
Number of Rooms
4
Bedrooms:
3
Full Baths:
1
Half Baths:
Key Features
• 2 Story Volume
• 3 & 1/2 Baths
• 4 Bedrooms
• Attached
• Basement
• Country Kitchen
• Courtyard
• Crawlspace
• Dining Room
• Double Vanity Sink
• Family Room
• Fireplace
• Formal LR
• Grand Master Suite
• Guest Room
• Guest Suite
• His and Hers Master Closets
• In-law Suite
• Kitchen Island
• Laundry 1st Fl
• Master Bdrm Main Floor
• Mud Room
• Separate Tub and Shower
• Skylights
• Special Ceiling Treatments
• Storage Space
• Vaulted Ceilings
• Vaulted Foyer
• Vaulted Living Room
• Walk-in Closet