Skip to content
Perfect Home Plans
home
about
plans
packages
search
contact
Plan: 2340 SHREWSBURY
Plan Details
|
Save Plan
|
Print Plan
|
Modify Plan
|
Reverse Plan
|
Return to Your Search
Details
|
Save
|
See Reverse
|
3D
|
Modify
|
Back to Search
See all 8 photos and rear view
Photographs may reflect modified homes
© copyright by designer
Plan Specification
Total Square Footage:
4,008
Main Level:
2,279
Second Level:
1,729
Bonus:
219
Bedrooms:
5
Baths:
3 Half: 1
Garages:
3
Width/Depth:
89 ft / 46 ft
Foundation:
Basement, Crawl Space
View typical construction drawing >
© copyright by designer
Front Rendering:
© copyright by designer
First Floor Plan:
© copyright by designer
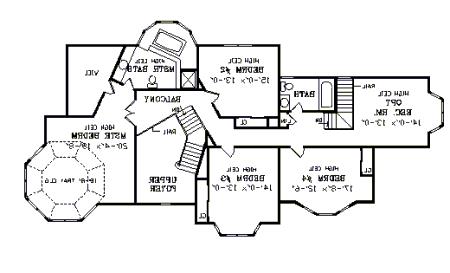
Second Floor Plan:
Similar plans:
98356
Add to Favorites
Purchase Plans
House Plan Pricing
PDF BID SET
$1,360.00
PDF Construction Set - Single Use
$1,680.00
Five Set Package
$1,800.00
Eight Set Package
$1,910.00
More details about our plan packages
Foundation Options
Crawl Space
$0.00
Basement
$150.00
Additional Plan Options
Additional Set
$60.00
Material List (if available)
$100.00
High Wind Structural Drawings
$150.00
Multiple Use License (For more than one home)
$250.00
Plan Details
General House Information
2
Number of Stories:
89' 4"
Width:
46' 4"
Depth:
Single
Dwelling Number:
Exterior Style
Luxury
Old House Classics
Traditional
Victorian
Number of Rooms
5
Bedrooms:
3
Full Baths:
1
Half Baths:
Finished Square Footage
2,279 Sq. Ft.
Main Level:
1,729 Sq. Ft.
Upper Level:
4,008 Sq. Ft.
Total:
Unfinished Square Footage
637 Sq. Ft.
Garage:
219 Sq. Ft.
Bonus Room:
GARAGE
Side
Garage Location:
3
Garage Size:
Foundation
Basement
Crawl Space
House And Ceiling Heights
9'-5"
First Floor Ceiling:
9'-5"
Second Floor Ceiling:
35' 0"
Maximum House Height:
Framing Information
Stick
Roof Framing:
2x4
Exterior Wall Framing:
Roof Pitch
10/12
Primary:
12/ 12
Secondary:
Roof Load
30
Live:
10
Dead:
Insulation (R)
13
Exterior Wall:
0
Interior Wall:
30
Ceiling:
19
Floor:
Number of Rooms
5
Bedrooms:
3
Full Baths:
1
Half Baths:
Key Features
• 3 & 1/2 Baths
• 5 Bedrooms
• Attached
• Basement
• Crawlspace
• Dual Staircase
• Fireplace
• Gourmet Kitchen
• Grand Master Suite
• Guest Room
• In-law Suite
• Rec Room
• Side-entry
• Two Story Foyer
• Vaulted Ceilings
• Vaulted Living Room
• Wrap Around Porches
• Wraparound Porch
Plan: 2340 SHREWSBURY
Close
featured plans
open floor plans
modern floor plans
home addition plans
ranch style plans
single story plans
multi story plans
farmhouse plans
cottage plans
lake house plans
small homes
featured plans
open floor plans
modern floor plans
home addition plans
ranch style plans
single story plans
multi story plans
farmhouse plans
cottage plans
lake house plans
small homes