Perfect Home Plans

Plan: 2319 FAIRMONT

Details |  Save | See Reverse | 3D | Modify | Back to Search
Front Photo Front Rendering Rear Rendering First Floor Plan Second Floor Plan
See all 5 photos and rear view
Photographs may reflect modified homes
© copyright by designer
Plan Specification
Total Square Footage: 2,867
Main Level: 1,366
Second Level: 1,501
Bedrooms: 4
Baths: 2 Half: 1
Garages: 2
Width/Depth: 53 ft / 43 ft
Foundation: Basement, Crawl Space, Slab Foundation
© copyright by designer 
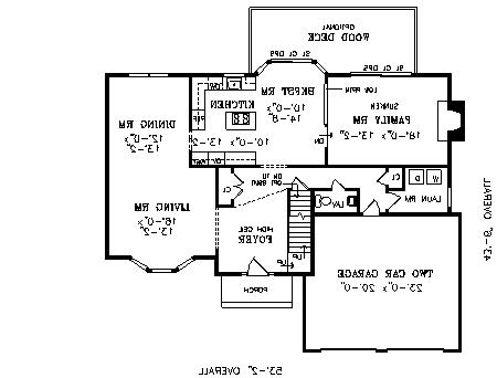
First Floor Plan:
First Floor Plan
© copyright by designer 
Second Floor Plan:
Second Floor Plan
Similar plans: 94335, 95345, 93303, 6361-1
Add to Favorites
Purchase Plans
House Plan Pricing
$925.00
$1,170.00
$1,280.00
$1,365.00
More details about our plan packages
Foundation Options
$0.00
$0.00
$150.00
Additional Plan Options
$50.00
$95.00
$250.00
$150.00
Plan Details
General House Information
2
Number of Stories:
53' 2"
Width:
43' 6"
Depth:
Single
Dwelling Number:
Exterior Style
Contemporary
European
Facade
Owner's Choice
OwnersChoice
Number of Rooms
4
Bedrooms:
2
Full Baths:
1
Half Baths:
Finished Square Footage
1,366 Sq. Ft.
Main Level:
1,501 Sq. Ft.
Upper Level:
2,867 Sq. Ft.
Total:
Unfinished Square Footage
467 Sq. Ft.
Garage:
GARAGE
Front
Garage Location:
2
Garage Size:
Foundation
Basement
Crawl Space
Slab Foundation
House And Ceiling Heights
8'-1"
First Floor Ceiling:
8'-1"
Second Floor Ceiling:
30' 8"
Maximum House Height:
Framing Information
Stick
Roof Framing:
2x6
Exterior Wall Framing:
Roof Pitch
10/12
Primary:
Roof Load
30
Live:
10
Dead:
Insulation (R)
19
Exterior Wall:
0
Interior Wall:
30
Ceiling:
19
Floor:
Number of Rooms
4
Bedrooms:
2
Full Baths:
1
Half Baths:
Key Features
• 2 & 1/2 Baths
• 2 Story Volume
• 4 Bedrooms
• Attached
• Basement
• Country Kitchen
• Crawlspace
• Deck
• Dining Room
• Double Vanity Sink
• Family Room
• Fireplace
• Formal LR
• Front Porch
• Front-entry
• Gourmet Kitchen
• Grand Master Suite
• His and Hers Master Closets
• Home Office
• Kitchen Island
• Laundry 1st Fl
• Loft / Balcony
• Master Bdrm Upstairs
• Mud Room
• Nook / Breakfast Area
• Oversized Garage
• Separate Tub and Shower
• Sitting Area
• Slab
• Special Ceiling Treatments
• Suited for narrow lot
• Two Story Foyer
• Vaulted Ceilings
• Walk-in Closet