Perfect Home Plans

Plan: 1318 KNOLLCREST

Details |  Save | See Reverse | 3D | Modify | Back to Search
Front Photo Front Rendering Rear Elevation Great Room Foyer First Floor Plan Second Floor Plan Front Porch
See all 8 photos and rear view
Photographs may reflect modified homes
© copyright by designer
Plan Specification
Total Square Footage: 2,081
Main Level: 1,384
Second Level: 697
Bedrooms: 4
Baths: 2 Half: 1
Garages: 2
Width/Depth: 59 ft / 43 ft
Foundation: Basement, Crawl Space, Slab Foundation
© copyright by designer 
First Floor Plan:
First Floor Plan
© copyright by designer 
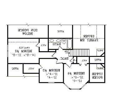
Second Floor Plan:
Second Floor Plan
© copyright by designer 
Front Porch:
Front Porch
Similar plans: 303, 94317, 95365
Add to Favorites
Purchase Plans
House Plan Pricing
$805.00
$1,040.00
$1,150.00
$1,225.00
More details about our plan packages
Foundation Options
$0.00
$0.00
$150.00
Additional Plan Options
$50.00
$95.00
$250.00
$150.00
Plan Details
General House Information
1.5
Number of Stories:
59' 8"
Width:
43' 6"
Depth:
Single
Dwelling Number:
Exterior Style
Old House Classics
Country
Modern
Traditional
Facade
Owner's Choice
OwnersChoice
Number of Rooms
4
Bedrooms:
2
Full Baths:
1
Half Baths:
Finished Square Footage
1,384 Sq. Ft.
Main Level:
697 Sq. Ft.
Upper Level:
2,081 Sq. Ft.
Total:
Unfinished Square Footage
440 Sq. Ft.
Garage:
258 Sq. Ft.
Porch:
GARAGE
Front
Garage Location:
2
Garage Size:
Foundation
Basement
Crawl Space
Slab Foundation
House And Ceiling Heights
8'-1"
First Floor Ceiling:
8'1"
Second Floor Ceiling:
Framing Information
Stick
Roof Framing:
2x4
Exterior Wall Framing:
Roof Pitch
8-1/2: 12
Primary:
Roof Load
30
Live:
10
Dead:
Insulation (R)
13
Exterior Wall:
0
Interior Wall:
30
Ceiling:
19
Floor:
Number of Rooms
4
Bedrooms:
2
Full Baths:
1
Half Baths:
Key Features
• 2 & 1/2 Baths
• 2 Story Volume
• 4 Bedrooms
• Attached
• Basement
• Covered Front Porch
• Covered Rear Porch
• Crawlspace
• Dining Room
• Double Vanity Sink
• Fireplace
• Formal Dining Room
• Front-entry
• Great Room
• His and Hers Master Closets
• Loft / Balcony
• Master Bdrm Main Floor
• Nook / Breakfast Area
• Peninsula / Eating Bar
• Powder Room
• Screened Porch/Sunroom
• Separate Tub and Shower
• Slab
• Storage Space
• Sun Room
• Two Story Foyer
• Vaulted Ceilings
• Walk-in Closet