Perfect Home Plans

Plan: 1301 FLORESTON

Details |  Save | See Reverse | 3D | Modify | Back to Search
Front Rendering Rear Elevation Great Room Front Rendering First Floor Plan
See all 5 photos and rear view
Photographs may reflect modified homes
© copyright by designer
Plan Specification
Total Square Footage: 1,489
Main Level: 1,489
Bedrooms: 3
Baths: 2 Half: 0
Garages: 2
Width/Depth: 52 ft / 41 ft
Foundation: Basement, Crawl Space, Slab Foundation
© copyright by designer 
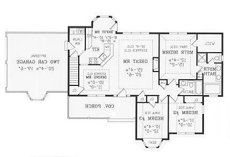
First Floor Plan:
First Floor Plan
Similar plans: HFL-1680-FL, 91312, 1301-2, HFL-1780-BO
Add to Favorites
Purchase Plans
House Plan Pricing
$595.00
$870.00
$980.00
$1,055.00
$1,695.00
More details about our plan packages
Foundation Options
$0.00
$0.00
$150.00
Additional Plan Options
$50.00
$150.00
$95.00
$350.00
$250.00
$150.00
Plan Details
General House Information
1
Number of Stories:
52' 0"
Width:
41' 8"
Depth:
Single
Dwelling Number:
Exterior Style
Country
Craftsman
Ranch
Facade
Owner's Choice
OwnersChoice
Number of Rooms
3
Bedrooms:
2
Full Baths:
Finished Square Footage
1,489 Sq. Ft.
Main Level:
1,489 Sq. Ft.
Total:
Unfinished Square Footage
432 Sq. Ft.
Garage:
169 Sq. Ft.
Porch:
GARAGE
Side
Garage Location:
2
Garage Size:
Foundation
Basement
Crawl Space
Slab Foundation
House And Ceiling Heights
8'-1"
First Floor Ceiling:
20' 0"
Maximum House Height:
Framing Information
Stick
Roof Framing:
2x6
Exterior Wall Framing:
Roof Pitch
7-1/2: 12
Primary:
Roof Load
30
Live:
10
Dead:
Insulation (R)
19
Exterior Wall:
0
Interior Wall:
30
Ceiling:
19
Floor:
Number of Rooms
3
Bedrooms:
2
Full Baths:
Key Features
• Attached
• Basement
• Country Kitchen
• Covered Front Porch
• Crawlspace
• Dining Room
• Double Vanity Sink
• Family Kitchen
• Fireplace
• Formal Dining Room
• Great Room
• Laundry 1st Fl
• Master Bdrm Main Floor
• Nook / Breakfast Area
• Open Floor Plan
• Peninsula / Eating Bar
• Separate Tub and Shower
• Slab
• Special Ceiling Treatments
• Vaulted Ceilings
• Walk-in Closet